Территория проектирования ограничивается ограждениями: детского сада, Спасских церквей, Патриарших садов и земляным валом Водонапорной башни. Проектируемый участок расположен в зоне охраны объектов культурного наследия – Р-2, также данную территорию затрагивает охранная зона памятника федерального значения – «Церкви Спасские» и памятник регионального значения – Водонапорная башня. Часть земельного участка попадает в охранную зону памятника природы – дубы.
На пешеходных путях устроены зоны отдыха, которые обустроены лавочками.
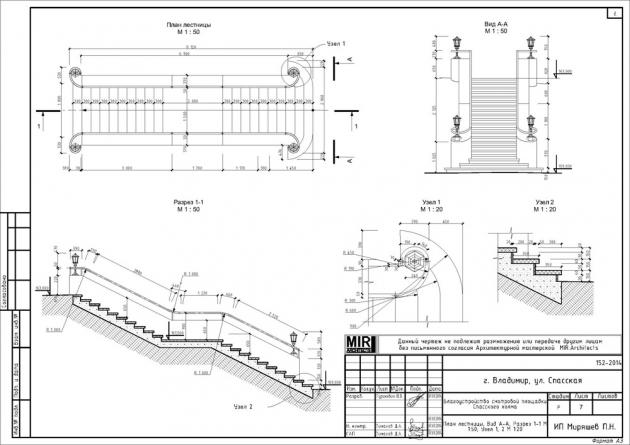
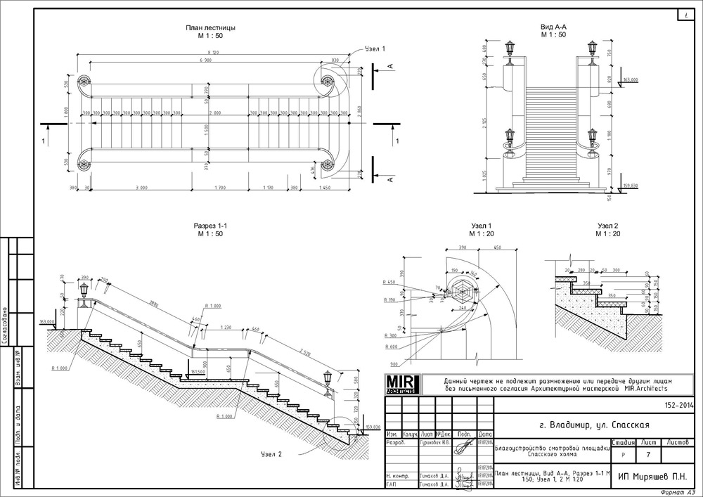
Завершает благоустройство Спасского холма - смотровая площадка с видом на Успенский собор и склон Патриарших садов.
Вдоль дорожек предполагается посадка живой изгороди, а на зеленых участка - устройство газонов, цветников и малых архитектурных форм.
Предполагается мощение тротуарной плиткой, серого и красного цветов.
Все зеленые насаждения, за исключением дикорастущих кустарников, сохраняются, предложено произвести санацию существующих деревьев.
ТЭП:
Площадь участка - 4908,91 кв.м.
Площадь дорог, проездов - 949,96 кв.м.
Площадь покрытия тротуаров - 1581,89 кв.м.
Площадь травяного покрытия - 2377,06 кв.м.