д. Оборино
Проект: Проект планировки квартала в д. Оборино (кадастровый номер земельного участка: 33:05:174102:99) муниципального образования г. Владимир.
Заказчик: физическое лицо
Годы проектирования: 2013
- проект планировки
- д. Оборино
Основанием для разработки документации по планировке территории являются: генеральный план муниципального образования (городской округ) город Владимир, с изменениями, утвержденными решением Совета народных депутатов от 29.01.2014 № 2, правила землепользования и застройки муниципального образования (городской округ) город Владимир, утвержденный решением Совета народных депутатов от 31.10.2011 № 183, постановление администрации города Владимира №120 от 13.01.2012г.
Цели и задачи проекта планировки.
Цель работы: разработка проекта планировки территории с целью комплексного развития территории дер. Оборино, с организацией транспортно-пешеходных связей с учетом дальнейшего развития территории.
|
Задачи проекта: - уточнение действующих градостроительных регламентов и предельных параметров разрешенного строительства; - установление красных линий с выделением территорий общего пользования; - развитие индивидуального жилищного строительства; - размещение объектов социального, культурно-бытового и коммунального обслуживания; - определить место допустимого размещения зданий и сооружений; |
- определение размеров земельных участков для размещения объектов капитального строительства.
СОВРЕМЕННАЯ ГРАДОСТРОИТЕЛЬНАЯ СИТУАЦИЯ.
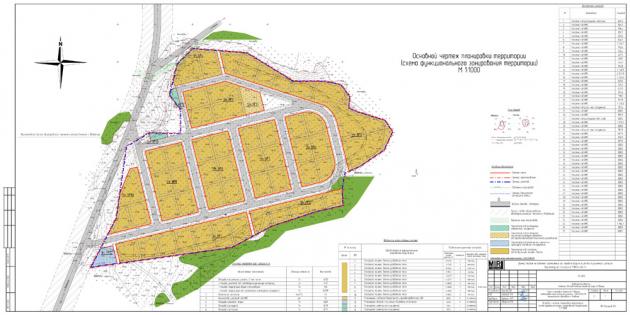
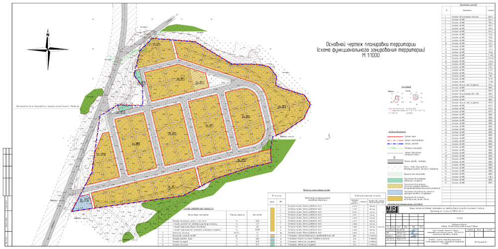
Участок расположен на территории микрорайона Спасское г. Владимира и относится к зоне перспективного освоения под жилищное строительство. Территория расположена рядом с автодорогой служащей основной связью деревни Немцово с г. Владимиром.
На данный момент территория представляет собой луг. Существующей застройки на проектируемом участке нет, земли используются для сельскохозяйственных нужд. Проектируемый участок находится в зоне Ж.2.3, небольшая часть территории на юго-востоке принадлежит к зоне П.2. Зона застройки многоквартирными жилыми домами (2-4 этажа), коммунально-складская зона.
Территория, определенная для проектирования составляет- 6,7 га
Проектное предложение.
ОСНОВНАЯ КОНЦЕПЦИЯ ЗАСТРОЙКИ.
Проектным решением определено 53 участка площадью от 5,2 до 21,5 соток. Предлагаются к размещению малоэтажные одноквартирные дома, этажность которых не превышает 3-х этажей с участками, на которых предусмотрены встроенные или отдельно стоящие гаражи для личного транспорта.
Основной въезд на территорию предусмотрен с перспективной дороги общегородского значения, согласно генплана г. Владимира. Образное решение поселка подразумевает выполнение домов в едином стиле.
Объемно-планировочное решение домов выполняется по заданию заказчика на следующей стадии проектирования. Вдоль основной транспортной магистрали предусматривается территория для размещения на ней объекта общего пользования
ТЕРРИТОРИАЛЬНЫЙ РЕСУРС И ЧИСЛЕННОСТЬ НАСЕЛЕНИЯ.
Территориальный ресурс проектируемой территории составил 6,7 Га.
Из расчета 4 чел/дом, численность населения составит 212 чел. Плотность населения- 45 чел/га.
ТЕХНИКО-ЭКОНОМИЧЕСКИЕ ПОКАЗАТЕЛИ
Таблица 2
|
№ пп |
Наименование показателей |
Единица измерения |
Количество |
|
1 |
Площадь территории участка |
га |
6,7 |
|
|
В том числе |
|
|
|
|
площадь жилых участков |
га |
4,57 |
|
|
Площадь участка общего пользования |
га |
1,95 |
|
|
Площадь территории инженерных сооружений |
га |
0,039 |
|
2 |
Плотность населения (212чел./6,7 га), |
Чел/га |
45 |
|
3 |
Количество жилых участков |
шт. |
53 |
|
4 |
Площадь проездов, дорог |
га |
0,89 |
|
5 |
Площадь покрытия тротуаров |
га |
0,29 |
|
6 |
Площадь озеленения |
га |
0,77 |


