д. Уварово 1
Проект: Проект планировки территории, расположенной в д. Уварово(кадастровый номер земельного участка 33:05:174109:103)муниципального образования города Владимира.
Заказчик: физическое лицо
Годы проектирования: 2013
- проект планировки
- д. Уварово 1
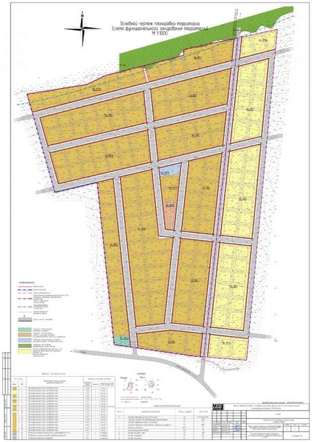
Участок расположен на территории, примыкающей с восточной стороны к д. Уварово, ограниченной существующей дорогой, границей д. Уварово, лесополосой, границей города Владимира и относится к зоне перспективного освоения под жилищное строительство. Территория расположена недалеко от автодороги служащей основной связью деревни Уварово с садовыми товариществами.
На данный момент территория представляет собой луг. Существующей застройки на проектируемом участке нет, земли используются для сельскохозяйственных нужд. Проектируемая территория находится в зоне Ж-1,4
Территория проектирования – 50 га
ПРОЕКТНОЕ ПРЕДЛОЖЕНИЕ.
ОСНОВНАЯ КОНЦЕПЦИЯ ЗАСТРОЙКИ.
Проект планировки территории, расположенной в д. Уварово(кадастровый номер земельного участка 33:05:174109:103)муниципального образования города Владимира.
рассматривается как часть проекта планировки северной части деревни Уварово муниципального образования город Владимир 37-2013 ссылается на данный проект при этом проект планировки северной части деревни Уварово включает в себя расчеты так же и на проект планировки территории в д. Уварово(кадастровый номер земельного участка 33:05:174109:103) и существующую застройку д. Уварово и д. Кусуново.
Проектным решением определено 169 участков площадью от 0,062 до 0,149 га. Предлагаются к размещению малоэтажные одноквартирные дома, этажность которых не превышает 3-х этажей с участками.
Основной въезд на территорию предусмотрен с существующего проезда д. Уварово, возможность присоединения к перспективной дороге общегородского значения которая пройдет с северной стороны от участка проектирования согласно Генерального плана муниципального образования (городской округ) город Владимир, с изменениями, утвержденными решением Совета народных депутатов г. Владимира от 29.01.2014 № 2 . Образное решение поселка подразумевает выполнение домов в едином стиле.
Объемно-планировочное решение домов выполняется по заданию заказчика на следующей стадии проектирования.
ТЕРРИТОРИАЛЬНЫЙ РЕСУРС И ЧИСЛЕННОСТЬ НАСЕЛЕНИЯ.
Территориальный ресурс проектируемой территории составил 19,37 га.
Из расчета 4 чел/дом, численность населения составит 676 чел. Плотность населения- 35 чел/га.
ТЕХНИКО-ЭКОНОМИЧЕСКИЕ ПОКАЗАТЕЛИ
Таблица 2
|
№ пп |
Наименование показателей |
Единица измерения |
Количество |
|
1 |
Площадь участков |
га |
19,36 |
|
|
В том числе |
|
|
|
|
площадь жилых участков |
га |
13,82 |
|
|
Площадь участка общего пользования |
га |
5,3 |
|
|
Площадь территории инженерных сооружений |
га |
0,057 |
|
2 |
Плотность населения (676чел./19,36 га), |
Чел/га |
35 |
|
3 |
Количество жилых участков |
шт. |
169 |
|
4 |
Площадь проездов, дорог |
га |
2,69 |
|
5 |
Площадь покрытия тротуаров |
га |
0,71 |
|
6 |
Площадь озеленения |
га |
1,9 |


