д. Уварово 2
Проект: Проект планировки территории северной части деревни Уварово муниципального образования город Владимир
Заказчик: физическое лицо
Годы проектирования: 2013
- проект планировки
- д. Уварово 2
Цели выполняемых работ: разработка проекта планировки территории с целью комплексного развития территории д. Уварово, с организацией транспортно-пешеходных связей;
Задачи выполняемых работ:
- уточнение действующих градостроительных регламентов и предельных параметров разрешенного строительства;
- установление красных линий с выделением территорий общего пользования;
- развитие индивидуального жилищного строительства;
- размещение объектов социального, культурно-бытового и коммунального обслуживания;
- определение размеров земельных участков для размещения объектов капитального строительства.
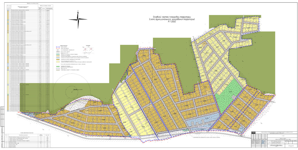
СОВРЕМЕННАЯ ГРАДОСТРОИТЕЛЬНАЯ СИТУАЦИЯ.
Участок расположен на территории примыкающей с севера к д. Уварово, ограниченной существующей дорогой, границей д. Уварово, территорией лесфонда, существующей застройкой и относится к зоне перспективного освоения под жилищное строительство. Территория расположена вдоль автодороги служащей основной связью деревни Уварово и коллективных садов с г. Владимиром.
На данный момент территория представляет собой луг. Существующей застройки на проектируемом участке нет, земли используются для сельскохозяйственных нужд. Проектируемые участоки находятся в зонах Ж.1.4,Ж2.3,РФ-1;Р-1,3. Площадь затрагиваемой территории проектируемого участка, составляет 100 га.
ПРОЕКТНОЕ ПРЕДЛОЖЕНИЕ.
ОСНОВНАЯ КОНЦЕПЦИЯ ЗАСТРОЙКИ.
Проектным решением определено 626 участков площадью от 0,052 до 2,77 га. Участки предусмотрены под размещение малоэтажной жилой застройки, этажность которых не превышает 3-х этажей, участки под размещение инженерных сооружений, участки под размещение детских дошкольных учреждений, объектов социально-культурно-бытового обслуживания, открытых спортивных сооружений, общеобразовательной школы.
Основной въезд на территорию предусмотрен с перспективной дороги общегородского значения, согласно генплана г. Владимира. Образное решение поселка подразумевает выполнение домов в едином стиле.
Объемно-планировочное решение домов выполняется по заданию заказчика на следующей стадии проектирования. Вдоль перспективной дороги предусматривается территория для размещения на ней объектов общего пользования
ТЕРРИТОРИАЛЬНЫЙ РЕСУРС И ЧИСЛЕННОСТЬ НАСЕЛЕНИЯ.
Территориальный ресурс проектируемой территории составил 100 га.
Из расчета 4 чел/дом, численность населения составит 2452 чел. Плотность населения- 25 чел/га.
ТЕХНИКО-ЭКОНОМИЧЕСКИЕ ПОКАЗАТЕЛИ
Таблица 2
|
№ пп |
Наименование показателей |
Единица измерения |
Количество |
|
1 |
Площадь территории участка |
га |
100 |
|
|
В том числе |
|
|
|
|
площадь участков ИЖС |
га |
55,8 |
|
|
Площадь участка общего пользования |
га |
38,7 |
|
|
Площадь территории инженерных сооружений |
га |
0,097 |
|
2 |
Плотность населения (436чел./13,2 га), |
Чел/га |
25 |
|
3 |
Количество участков ИЖС |
шт. |
613 |
|
4 |
Площадь проездов, дорог |
га |
9,94 |
|
5 |
Площадь покрытия тротуаров |
га |
2,63 |
|
6 |
Площадь озеленения |
га |
26,13 |


