д. Уварово 3
Проект: Проект планировки восточной части деревни Уварово муниципального образования город Владимир
Заказчик: физическое лицо
Годы проектирования: 2013
- проект планировки
- д. Уварово 3
Цели выполняемых работ: разработка проекта планировки территории с целью комплексного развития территории д. Уварово, с организацией транспортно-пешеходных связей;
Задачи выполняемых работ:
- уточнение действующих градостроительных регламентов и предельных параметров разрешенного строительства;
- установление красных линий с выделением территорий общего пользования;
- развитие индивидуального жилищного строительства;
- размещение объектов социального, культурно-бытового и коммунального обслуживания;
- определение размеров земельных участков для размещения объектов капитального строительства.
Цели и задачи выполняемых работ
Разработка проекта планировки территории выполнена с целью размещения малоэтажной жилой застройки с учётом перспективного развития
территории и реализации Генерального плана МО г.Владимир.
Современное использование территории
Участок расположен в границах населённого пункта Уварово муниципального образования г.Владимир. Территория расположена вдоль
магистральной автодороги, служащей основной связью восточного сектора пригородной зоны г.Владимира (д.Бухолово, с.Кусуново, д.Уварово).
В настоящее время земельный участок представляет собой свободную от застройки территорию, земли используются для сельскохозяйственных нужд.
Согласно Правил землепользования и застройки муниципального образования (городской округ) г.Владимир участок находится в зоне застройки
малоэтажными одноквартирными и многоквартирными жилыми домами до 3 этажей - зона перспективного развития. Санитарно-защитных зон нет.
Архитектурно-планировочная организация территории
В составе проекта разработана схема развития территории Кусуново-Уварово-Бухолово, выполненная на основании утверждённого Генерального
плана МО г.Владимир, включающая проектируемую территорию. Схемойразвития предусмотрено обоснование размещения малоэтажной жилой
застройки с учётом радиуса доступности необходимых объектов социального икультурно-бытового обслуживания.
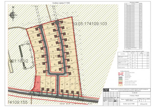
Территория проектирования проекта планировки составляет 4,65 га.
Проектным решением на рассматриваемой территории определены участки в количестве 31 шт., площадью от 11 до 15 соток. Вдоль основной транспортной
магистрали предусматривается территория для размещения объектов общественного назначения.
Объемно-планировочное решение жилых домов подразумевает выполнение домов в едином стиле на следующей стадии проектирования по
заданию заказчика.
Основной въезд на территорию предусмотрен с существующей магистральной дороги. Внутрипоселковая дорога закольцована и
запроектирована двухполосной. Транспортные средства индивидуального пользования предлагается размещать непосредственно на участках
с устройством площадок хранения транспорта или во встроенных в дом гаражах.
Инженерное обеспечение в части газоснабжения и электроснабжения проектируемой территории предусматривается в соответствии с выданными
техническими условиями соответствующих организаций.
Водоснабжение и канализационирование предусматривает устройство индивидуальных скважин и системы индивидуальной биологической очистки
(септик).


