д. Вяткино
Проект: Проекта планировки на земельный участок 33:11:060506:86, по адресу: обл. Владимирская, Судогодский район, МО Вяткинское (сельское поселение), севернее д. Вяткино
Адрес объекта: Владимирская обл., Судогодский район, МО Вяткинское (сельское поселение), севернее д. Вяткино
Заказчик: ООО «Игротэк»
Годы проектирования: 2014
- проект планировки
- д. Вяткино
Основанием для проектирования является:
Договор с ООО «Игротэк» в 2014г. Участок проектирования передан по договору аренды ООО «Игротэк» в соответствии с решением Аукционной комиссии Федерального фонда содействия развитию жилищного строительства (фонд «РЖС»).
Основанием для разработки документации по планировке и межеванию территории являются: Генеральный план МО Вяткинское с/п Судогодского района Владимирской области , утв. решением СНД Вяткинского с/п от 16.12.2010 №76/20,
Правила землепользования и застройки муниципального образования Вяткинское сельское поселение Судогодского района Владимирской области», утв. решением СНД Вяткинского с/п от 30.10.2009 №8/1.
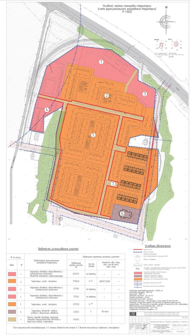
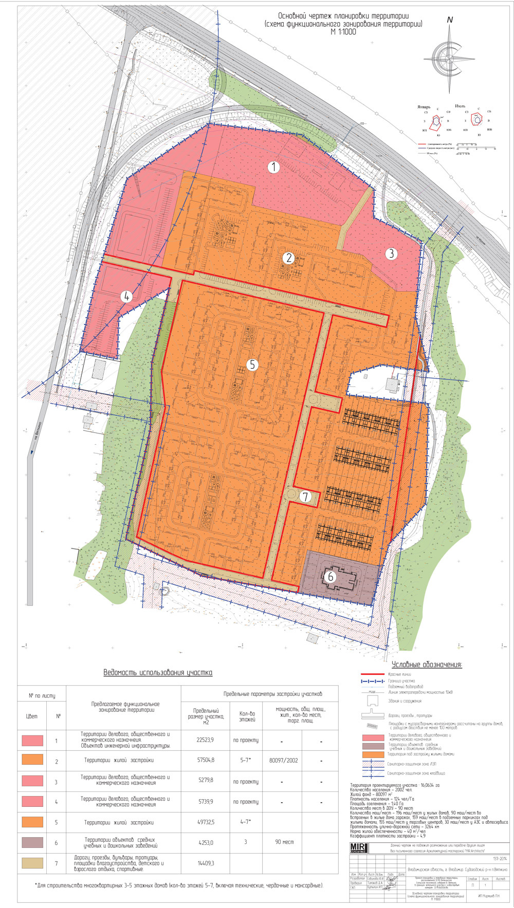
Проектное предложение.
- ФУНКЦИОНАЛЬНОЕ ЗОНИРОВАНИЕ.
Выбор принципиального функционального зонирования и планировочной структуры проектируемого участка продиктован наличием планировочных ограничений санитарно-защитных зон.
Условно пространство можно поделить на три функциональные зоны:
- Жилая зона с прилегающей к ней территорией, которая занимает большую часть территории.
- Зона общественной застройки, которая располагается в северной и западной части участка.
- Зона размещения объектов дошкольных учреждений. Здесь располагается проектируемый детский сад.
- ОСНОВНАЯ КОНЦЕПЦИЯ ЗАСТРОЙКИ.
Проектом предлагается новое строительство групп многоквартирных 3-5 этажных домов (кол-во этажей 5-7, включая технические, чердачные и мансардные.), детского сада, рассчитанного на пребывание 90 детей, а также размещение предприятий обслуживания микрорайонного значения, включающие 2 торговых центра, АЗС и автосервис.
Проектируемая жилая площадь составит 80097м.кв., при жилищной обеспеченности в 40м2 /чел = 2002 чел.
Дворовые проезды проектируемых домов отделяют их участки от существующей застройки.
У каждого жилого дома расположены стоянки для временного хранения автомобилей и детские площадки, согласно нормам проектирования.
3. ТЕРРИТОРИАЛЬНЫЙ РЕСУРС И ЧИСЛЕННОСТЬ НАСЕЛЕНИЯ.
Территориальный ресурс территории составляет 16,0634 га.
Показатели проектируемой селитебной территории и населения представлены в таблице:
|
Селитебная территория, га |
Кол-во жителей, чел. |
Плотность населения, чел./га |
|
16,0634 |
2002 |
124 |
- Основные технико-экономические показатели
Таблица 10
|
№ |
Показатель |
Единица измерения |
Величина |
Примечание |
|
|
1 |
Территория |
|
|
|
|
|
1.1 |
Территория проектируемого участка: |
га |
16,0634 |
|
|
|
11.2 |
Селитебная территория, в том числе: |
га |
7,37 |
|
|
|
|
Площадь озеленения |
Га |
1,40 |
|
|
|
|
|||||
|
2 |
Население |
|
|
|
|
|
2.1 |
Численность населения проектируемое |
чел |
2002 |
|
|
|
2.2 |
Плотность населения |
чел/га |
124 |
|
|
|
|
|||||
|
3 |
Жилая застройка |
|
|
|
|
|
3.1 |
Количество домовладений |
объект |
21 |
|
|
|
|
|
|
|
|
|
|
|
|
|
|
|
|
|
|
|||||
|
4 |
Объекты социального и культурно-бытового обслуживания населения |
|
|
|
|
|
4.1 |
Учреждения образования |
|
|
|
|
|
|
4.1.1 |
Детский сад |
мест |
90 |
|
|
4.2 |
4.2.1 |
Торговый центр |
- |
- |
|
|
|
4.2.2 |
Торговый центр |
- |
- |
|
|
|
4.2.3 |
Автосервис |
- |
- |
|
|
|
4.2.4 |
АЗС |
- |
- |
|









