Технико - экономические показатели:
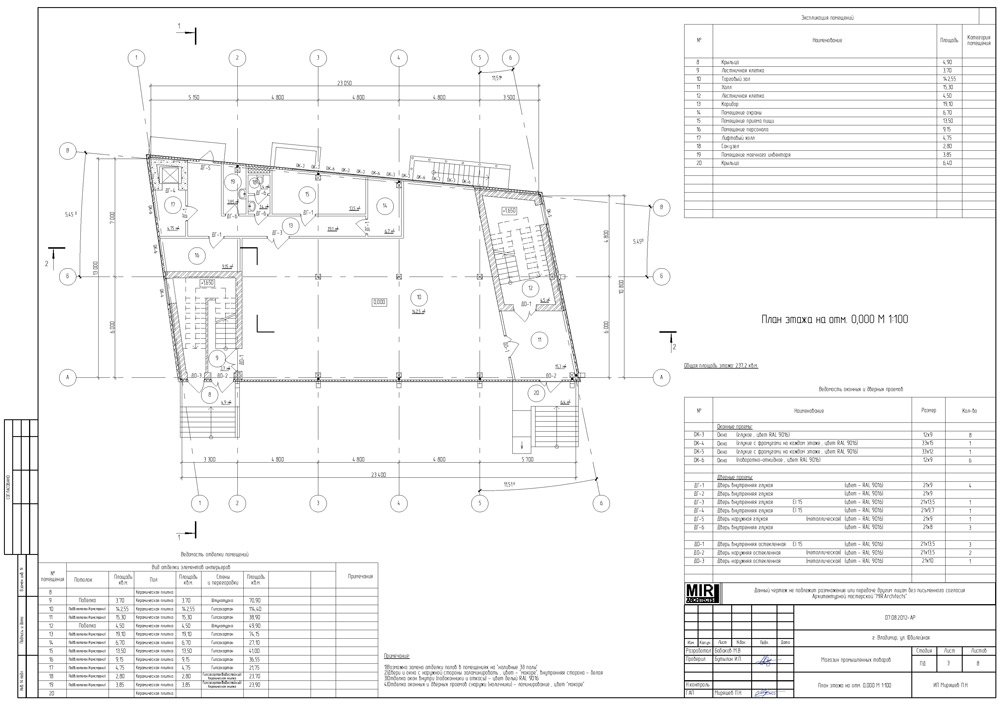
Общая площадь – 733,70 м2
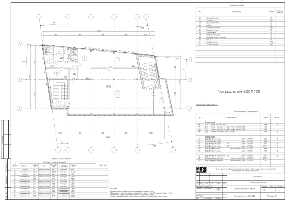
Общая площадь торговых залов – 287,90 м2
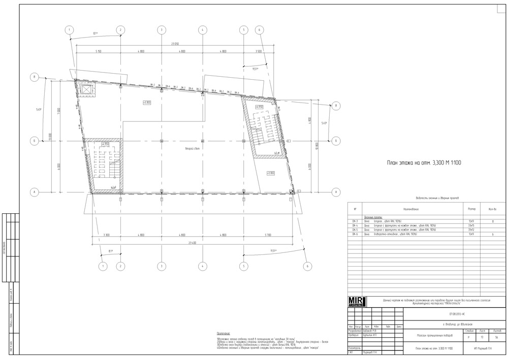
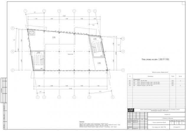
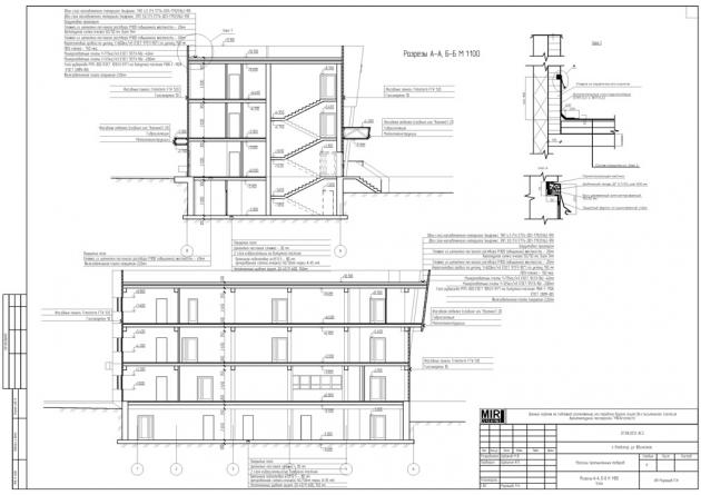
Высота этажа: тех.подполья – 1,75 м; 1-го этажа – 6,3 м; 2-го этажа – 3,0 м
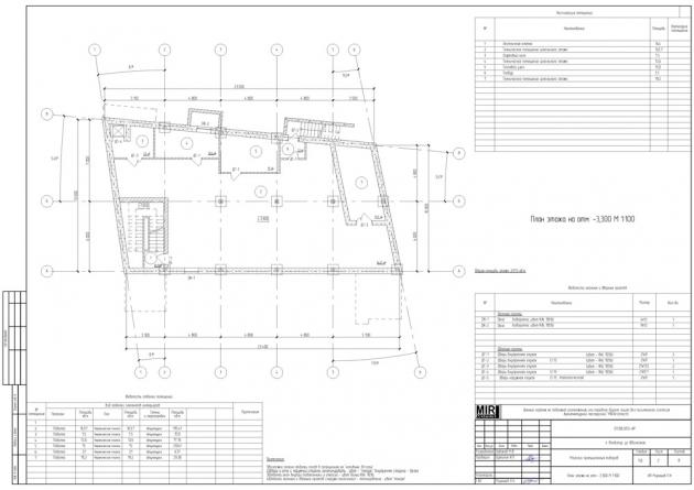
Площадь застройки – 335,80 м2
Строительный объем здания:
- выше 0,000 – 2601,50 м3
- ниже 0,000 – 783,75 м3
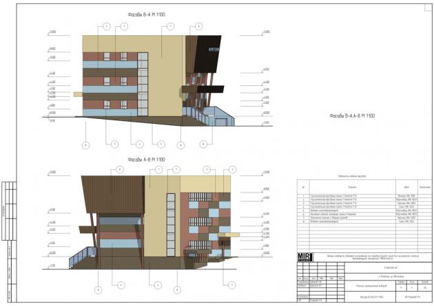
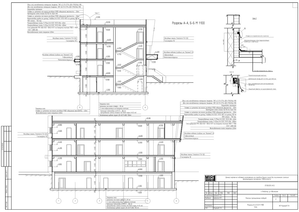
В качестве основного материала для строительства здания проектом предусмотрено применение стенового материала панелей TRIMOTERM FTV толщиной 120мм
В основу объемно-пространственных и архитектурно-художественных решений проектируемого объекта заложена идея вписать здание в городскую среду по принципу гармонии с существующей архитектурой зданий, рационального использования территории участка, соблюдение технологических, санитарно-гигиенических и противопожарных требований.
Существующая застройка вокруг проектируемого здания, сформирована панельными домами 5 – 9 этажей, а так же продуктовым магазин. Таким образом проектируемое здание решено в едином архитектурном стиле с окружающей застройкой. Архитектурное решение обусловлено так же формой участка.