Стадия: предпроектное предложение, проект, рабочая документация
В основу объемно-пространственных и архитектурно-художественных решений, проектируемого объекта, заложена идея минимализм с соблюдением технологических, санитарно-гигиенических и противопожарных требований. Здание 2 этажное без подвала с неэксплуатируемым чердаком. Высота этажа – 3,3 м;
Остов здания: металлические колонны, ригеля, лесницы; сборные ж/б перекрытия, наружная стена – ютонг, наружная верста из декоративного силикатного кирпича, штукатурка.
Технико-экономические показатели :
Строительный объем здания – 4402,17 м3
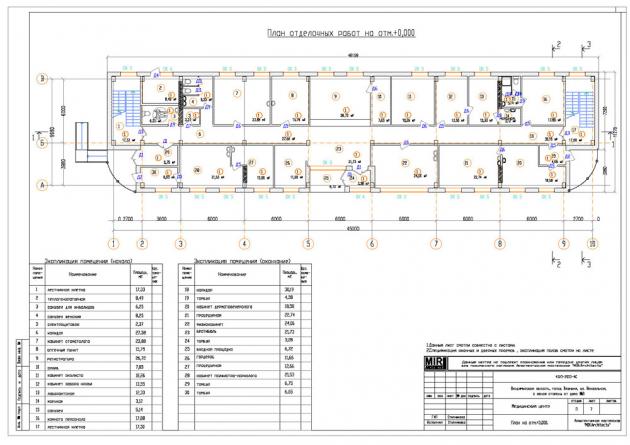
Общая площадь здания - 818,01 м2
Общая площадь помещений первого этажа - 415,15 м2
Общая площадь помещений второго этажа - 402,86 м2
Для всего здания:
Площадь 1 функциональной группы помещений (вестибюльная)- 97,40 м2
Площадь 2 функциональной группы помещений (лечебно-профилактическая)- 421,89 м2
Площадь 3 функциональной группы помещений (служебно-бытовая)- 298,72 м2
Число посетителей – 180чел.