Стадии: предпроектное предложение, проектная документация, рабочая документация.
Осевая привязка и композиция, этажность здания выполнена на основе утвержденного 1980-х годах Горсоветом г.Коврова ПРОЕКТА ДЕТАЛЬНОЙ ПЛАНИРОВКИ микрорайона №4, ограниченного улицами Строителей, Комсомольская, Лиственная, Ореховая.
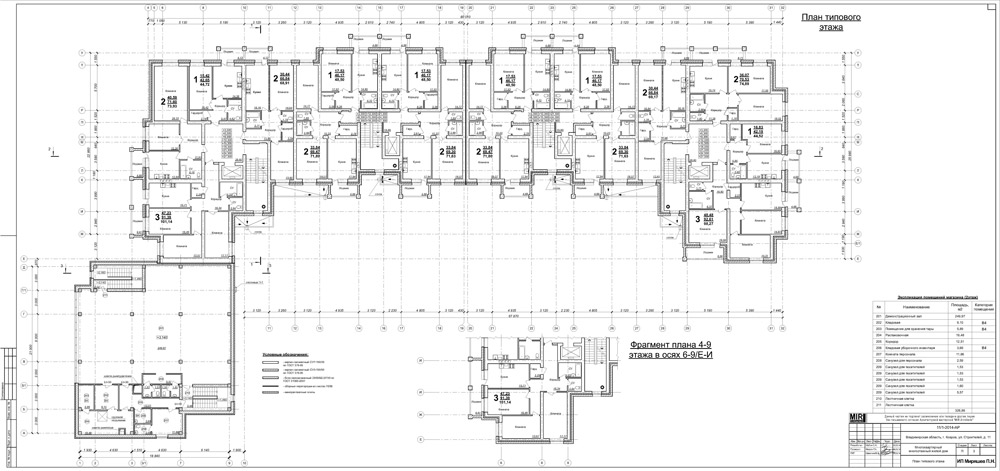
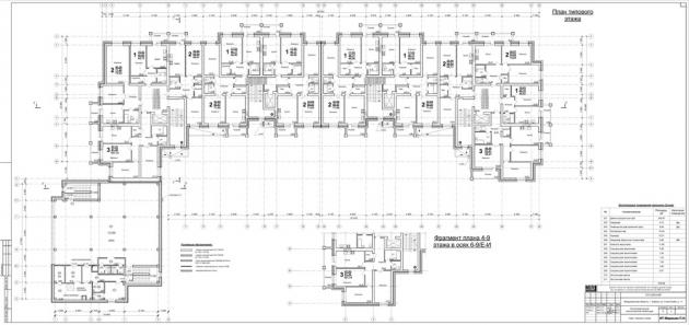
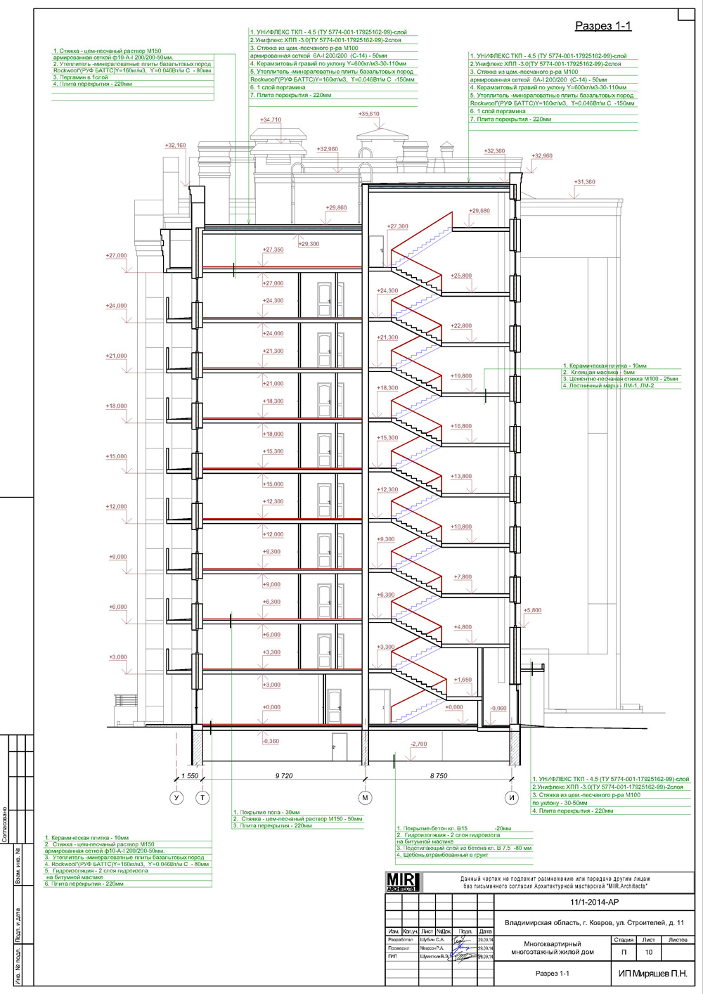
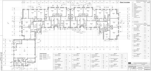
Многоквартирный многоэтажный жилой дом 9этажный кирпичный состоит из четырех секций класс – комфорт с поквартирным отоплением. Форма здания сложная в плане. (Высота жилых этажей от пола до пола - 3м; Высота офисов и магазина от пола до пола - 3,3м)
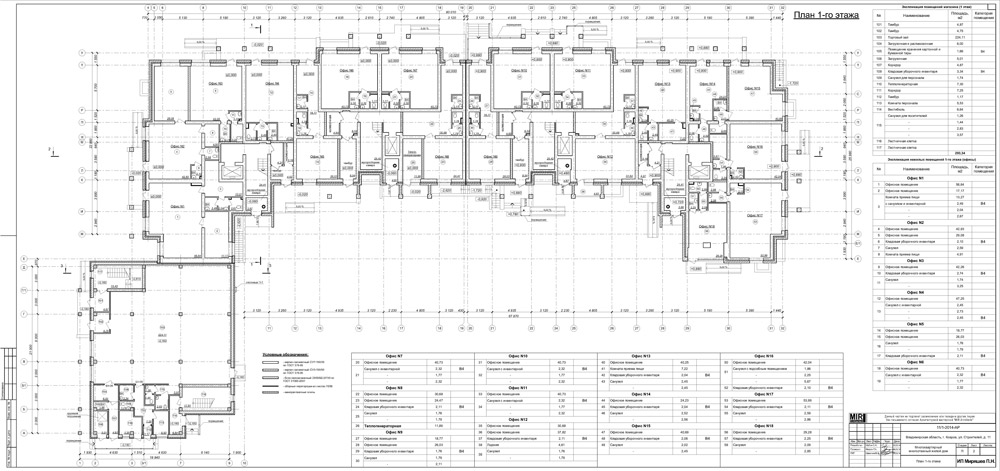
Жилой дом по проекту имеет 9 этажей, подвал и технический этаж (чердак). На первом этаже располагаются общественные помещения – встроенные офисы. В осях 1-9 и А-Д расположен 2-х этажный пристроенный объект розничной торговли. Каждая секция оборудована лифтом и мусоропроводом. Вход в жилую часть обособлен от входов в нежилые помещения. В подвале секции 2, расположенной в осях 12-19 и К-У, находится помещение насосной и электрощитовой нежилых помещений, кладовая уборочного инвентаря. В подвале секции 3, расположенной в осях 20-27 и К-У, находится помещение электрощитовой для жилого дома. Со второго по девятый этаж расположены квартиры.
Общее количество квартир – 128шт. Из них 1-комнатных – 48шт, 2-комнатных – 64шт., 3-комнатных – 16шт.
Объект розничной торговли – 2этажа. Площадь общая 620 кв.м.
Встроенные офисы – 18 шт.
Отделка наружных стен фасадов – кирпичная кладка из цветного лицевого силикатного кирпича СУЛ-150/50 по ГОСТ 379-98, производитель ЗАО «Ковровский кирпичный завод».
Композиция фасадов здания достигается колористическим решением и пластикой фасадов. Цвет подчеркивает форму здания. Первый этаж выполнен из черного кирпича, второй и третий из желтого, с четвертого по девятый из белого, и тех этаж из желтого. Такое цветовое решение придает зданию визуальной устойчивости.
Эклектику стиля с элементами классики, подчеркивают различные декоративные элементы: кирпичные пояски, пилястры, колонны, массивные фронтоны над лоджиями, а так же сложность форм в плане.