Многоквартирный жилой дом клубного типа «DaVinci»
Адрес объекта: г. Владимир, ул Сакко и Ванцетти
Заказчик: ООО «СтройМонтаж-21.»
Годы проектирования: 2012 г.
- проектная документация
- Многоквартирный жилой дом клубного типа «DaVinci»
Стадия: предпроектное предложение, проектная документация
Много сегодня говорится о доступном жилье эконом-класса. РФ ставит перед застройщиками задачи по увеличению объемов строительства именно такого жилья. В итоге на рынке недвижимости в малых, средних и даже крупных городах выбор новостроек однотипен.
Поэтому ООО «СтройМонтаж-21.»как компанияклиентоориентированная, стремится к тому, чтобы жилье было разноплановое, в частности данный проекткласса-элит. И примером тому послужит новый жилой комплекс клубного типа, который украсит микрорайон и гармонично впишется в существующую застройку.
Планировочные решения тщательно продуманы и разработаны на основе предпочтений заказчика.
Жилой дом настолько индивидуален, что его индивидуальность подчеркнута и в названии, а именно: Жилой дом «DaVinci». На сегодняшний день данный проект уникальный для г.Владимира.
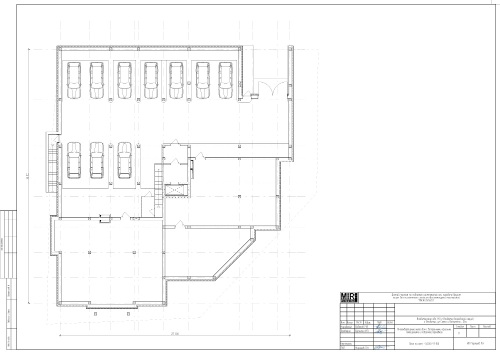
Многоквартирный жилой дом клубного типа с поквартирным отоплением, с встроенными помещениями общественного назначения и автостоянкой.
Идея проекта:
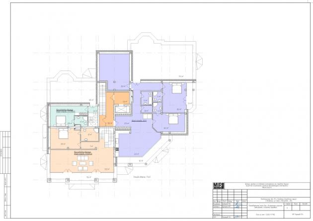
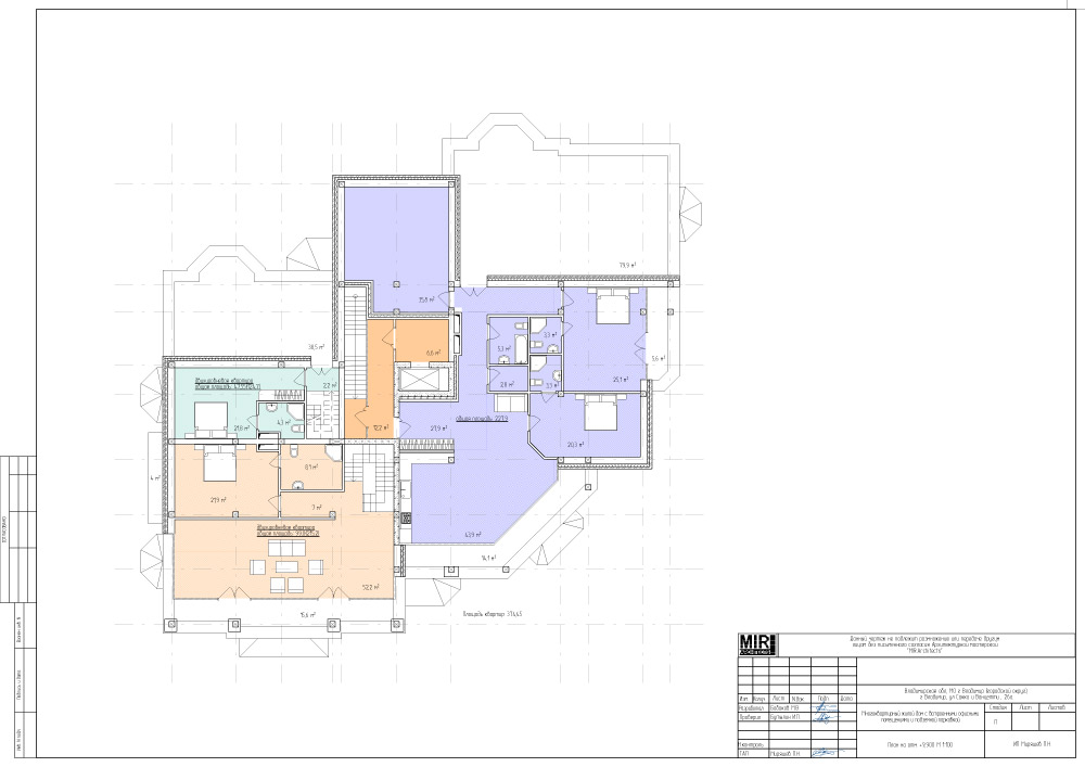
• на верхних этажах запроектированы квартиры класса-элит, где панорамное остекление квартир ориентировано на виды исторического ядра г.Владимира
• конструктивное решение остова здания позволяет решить главный вопрос будущих владельцев жилогодома --- свободную планировку квартиры.
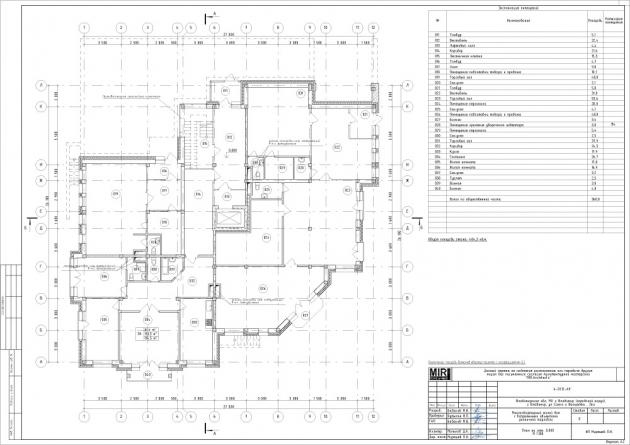
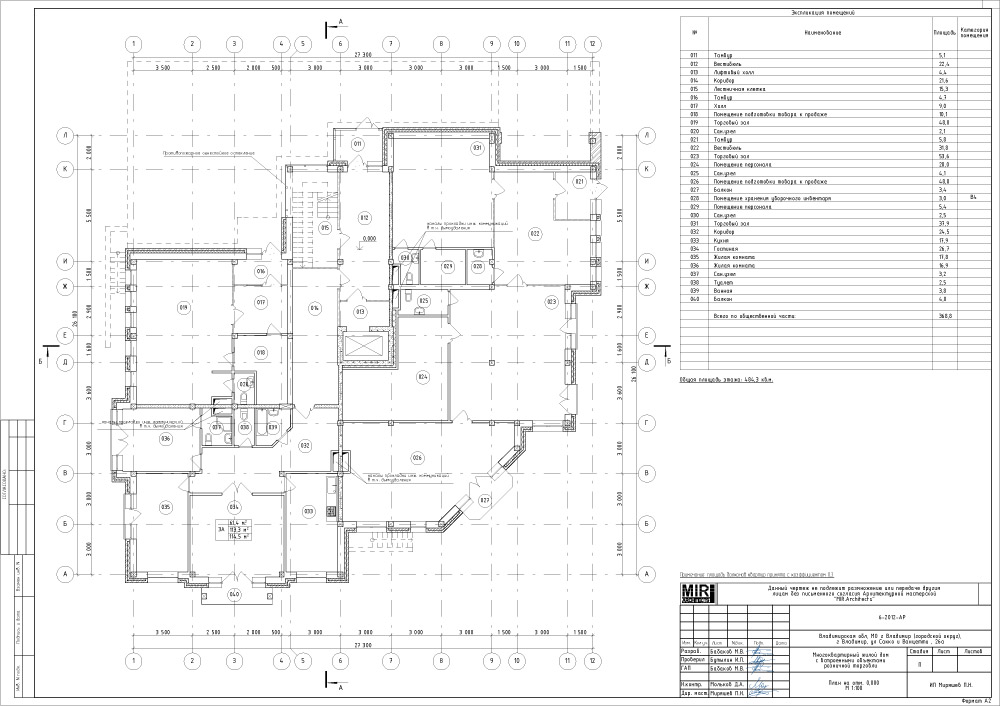
• дольщику будущей квартиры предлагается возможность вести бизнес не выходя из дома, а именно: на первом этаже размещены помещения общественного назначения
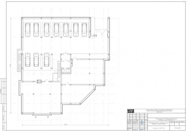
• цокольный этаж – автостоянка, удобное комфортное размещение автомобиля для жильцов и гостей дома с возможностью перемещения из цокольного этажа на любой этаж с помощью лифта.
В качестве основного материала конструкций здания проектом предлагается использовать ж/б монолит с утеплением и облицовкой из современных материалов.Каркас здания предусматривается в монолитном железобетонном исполнении с заполнением ограждающих конструкций крупноразмерными блоками и декоративной фасадной отделкой кирпичом, штукатуркой, искусственным камнем и глазированной керамической плиткой.
Архитектура здания пропорциями и декоративной отделкой призвана привлекать внимание и создавать атмосферу пространства с застройкой зданиями 19 века. Скатная кровля предусматривается фальцевой из листового металла и так же своим внешним видом дополняет целостность образа. Большие площади остекления и применяемое стекло с высокой отражательной способностью позволяет еще лучше вписываться зданию в окружающую среду. Дом целостен в градостроительном смысле, доступен для обхода и восприятия с близких расстояний.













