Многоквартирный жилой дом с встроенными офисами г. Владимир
Адрес объекта: г. Владимир, ул.Нижняя Дуброва, дом в районе д. 46
Заказчик: ООО «Строй-Инвест»
Годы проектирования: 2012
- проектная документация
- Многоквартирный жилой дом с встроенными офисами г. Владимир
- реализация
Проект многоквартирного многоэтажного жилого дома выполнен на земельном участке с кадастровыми номерами 33:22:011303:773 общей площадью 1,6949 га
Красивый жилой комплекс ждет своих жильцов совсем скоро. У здания современная отделка фасада и нестандартное изящное архитектурное решение. В доме есть квартиры разной планировки и площади. Компания «Строй-Инвест» предлагает купить их по оптимальной цене. Компания «Строй-Инвест» представляет дом, среди квартир которого каждый подберет себе ту, о которой мечтал. Здесь элитные варианты повышенной площади и вполне доступные для всех экономные предложения. Но их всех объединяет одно – высокое качество строительных и отделочных работ. Дом красив внутри и безупречен снаружи. Все планировки тщательно продуманы и создают удобные условия для проживания.
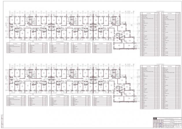
Многоквартирный многоэтажный жилой дом состоит из пяти секций. Форма жилого дома в плане сложная, состоящая из множества прямоугольников. Здание по проекту 17-тиэтажное с тех. подпольем и тех. чердаком.
В каждой секции предусмотрена незадымляемая лестничная клетка типа Н-1 с переходом к лифтовому холлу через воздушную зону. В пределах 1-ого этажа коридор оборудован подъёмником. Для всех секций предусмотрены два лифта: пассажирский ЛП-0401Б Могилёвлифтмаш ОГК (грузоподъёмность 400 кг, скоростью 1 м/с, кабина 920х1020, дверь высотой 2000, шириной 700) и грузопассажирский ЛП-0510БШ Могилёвлифтмаш ОГК (грузоподъёмность 630 кг, скоростью 1 м/с, кабина 2090х1120, дверь высотой 2000, шириной 1200).
Композиция объема подчеркивается ступенчатой формой абриса пятна застройки. Отделка фасадов покраска по штукатурке. Утепление фасадов выполняются по системе "Сенарджи МвС".
Проектной мастерской «Mir.Architects» по заказу ООО «Строй-Инвест» в 2014г. выполнена корректировка проекта, а именно: часть помещений 1этажа перепрофилируется во встроенные офисные помещения.
В плане корректировки проекта предусматриваются следующие решения:
1. изменения касаются только трёх секций в пределах первого этажа (секция в осях 1-9 и М-П, секция в осях 9-17 и М-П и секция в осях 17-28 и Л-П);
2. с первого этажа выше обозначенных секций исключаются квартиры, которые заменяются на встроенные офисные помещения.
3. После проведённых изменений общее количество квартир составляет 426 из них: 1 -комнатные 260 шт.; 2-хкомнатные 70 шт.; 3-хкомнатные 80 шт.; 4-хкомнатные 16 шт.. В пределах первого этажа расположено шесть офисов, изолированные от жилой части здания, с отдельными выходами со стороны улицы.
В основу принятых объемно-пространственных решений и архитектурно-художественных решений заложены следующие принципы и задачи:
- рациональное использование территории участка и застройки;
- создание единого архитектурного комплекса;
- пропорциональные соотношения с окружающей застройкой;
- внедрение новых технических решений, способствующих снижению массы здания, уменьшению стоимости и сокращению сроков строительства.
Объемно-планировочное решение проектируемого здания обусловлено функциональными, технологическими и санитарно-гигиеническими требованиями, сложившейся ситуации по генплану.
Архитектурно-художественное решение выполненно в соответствии со сложившейся застройкой.
Композиция фасадов здания по проекту достигается такими архитектурными элементами как: пояски, рустовка, парапетами со вставками кованных элементов. Дополнительную выразительность фасадам придает расколеровка. Колера: цвет белый - RAL 9003, цвет коричневый - RAL 7006.
Технико-экономические и эксплуатационные показатели объекта
|
№ |
Наименование |
Ед.. |
Кол-во |
Примечание |
|
1 |
2 |
3 |
4 |
5 |
|
|
Жилой дом |
|
|
|
|
1. |
Количество этажей |
эт. |
18 |
|
|
2. |
Количество секций |
шт. |
5 |
|
|
3. |
Количество встроенных офисов |
шт. |
6 |
|
|
4. |
Количество квартир |
шт. |
426 |
|
|
|
В том числе: |
|
|
|
|
|
- 1 комнатных |
шт. |
260 |
|
|
|
- 2 комнатных |
шт. |
70 |
|
|
|
- 3 комнатных - 4 комнатных |
шт. шт. |
80 16 |
|
|
5. |
Жилая площадь квартир |
м2 |
11203,20 |
|
|
6. |
Общая площадь квартир |
м2 |
22624,06 |
|
|
7. |
Общая площадь офисов |
м2 |
1000,14 |
|
|
8. |
Общая площадь здания |
м2 |
32071,01 |
|
|
9. |
Строительный объем подземной части здания |
м3 |
4417 |
|
|
10. |
Строительный объем надземной части здания |
м3 |
114952 |
|
|
11. |
Население |
чел. |
704
|
|
|
|
Показатели земельного участка |
|
|
|
|
12. |
Площадь земельного участка |
|
|
|
|
|
|
м2 |
7724 |
|
|
13. |
Площадь застройки |
м2 |
2265,28 |
|
|
14. |
Площадь твердого дорожного покрытия |
|
|
|
|
|
|
м2 |
2750,7 |
|
|
15. |
Площадь твердого тротуарного покрытия |
|
|
|
|
|
|
м2 |
651,88 |
|
|
16. |
Площадь отмостки |
|
|
|
|
|
|
м2 |
232,8 |
|
|
17. |
Площадь озеленения |
м2 |
1237,12 |
|
|
|
|
|
|
|
|
18. |
Площадь озеленения на 1-го человека |
м2/чел |
1,76 |
|
|
19. |
Количество машино-мест на стоянках |
м.мест |
62 |
|







