Стадия: разработка квартала (группы жилых домов, предпроектное предложение жилого дома №1 по ГП), проектная и рабочая документациямногоквартирного жилого дома с крышной газовой котельной
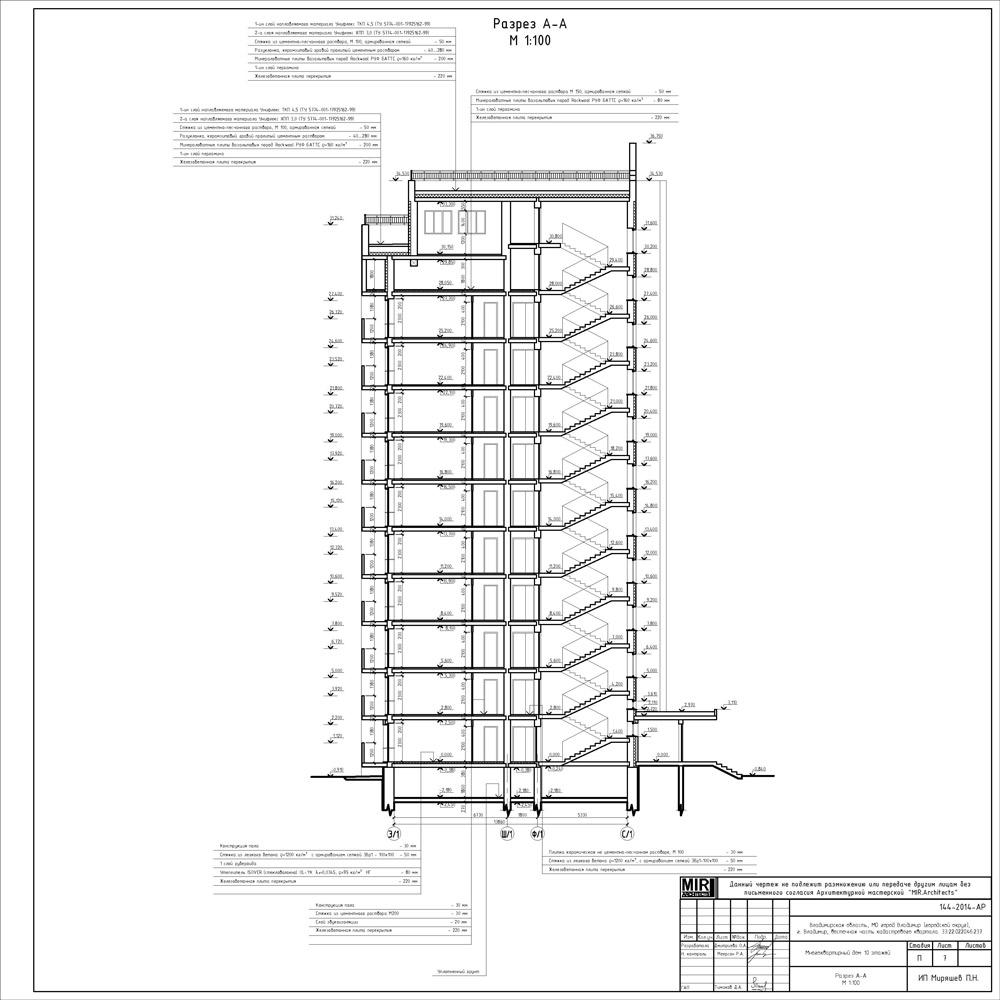
Дом 10-тиэтажный 5-ти секционный выполнен из силикатного кирпича со сборными ж/бизделями.
В качестве основного материала для вертикальных ограждающих конструкций здания проектом предусмотрены:
- 1-й этаж – слоистая кладка, внутренняя верста – силикатный кирпич (380 мм), утеплитель (140 мм), наружная верста – утолщенный силикатный декоративный кирпич с расшивкой швов (120 мм)
- этажи выше 1-го – наружная верста – силикатный кирпич (380 мм), утеплитель (140 мм) и облицовкой фасадов декоративной штукатуркой по сетке.
Перекрытия – сборные ж/б
Лестничные клетки – сборные ж/б. межквартирные перегородки выполнены из кирпича толщиной 380 мм. Внутриквартирные перегородки выполнить из кирпича (90 мм).
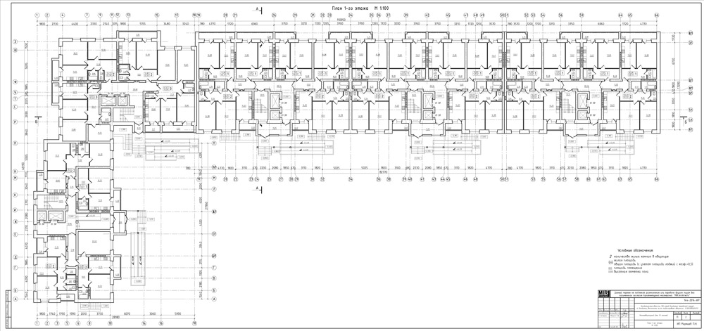
В плане дом представляет собой «Г» - образную форму.
Архитектура здания лаконична. Горизонтальные тяги в виде поясов визуально принижают дом, что облегчает его восприятие. Кровля плоская. Выступающие над кровлей лестничные клетки представляют собой акценты на фасадах. Архитектурный акцент на поворотной секции хорошо читается со стороны выезда на трассу М7 «Волга», за счет декоративной конструкции. Дом целостен и традиционен в градостроительном смысле, доступен для обхода и восприятия с близких расстояний.
Основные технико - экономические показатели:
10-ти этажный жилой дом.
Количество квартир – 269 кв., в том числе:
1 ком. – 148 кв. – 55,0 %
2 ком. – 101 кв. - 37,6 %
3 ком. – 20 кв. – 7,4 %
Кол-во этажей – 10 шт.
Площадь застройки – 2460,64 м2
Площадь жилого здания – 19701,03 м2
Общая площадь квартир – 14361,62 м2 (площадь квартир посчитана с учетом понижающего для лоджий = 0,5)
Строительный объем жилого дома - 75930,80 м3 в том числе:
- строительный объем ниже отм. 0,000 – 4851,82 м3
- строительный объем выше 0,000 – 71078,98 м3
Расчетное количество населения – 410 человек.