Стадия: предпроектное предложение, проект, рабочая документация
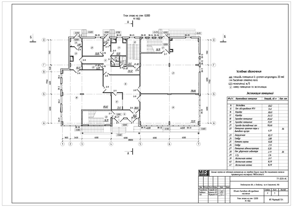
Назначение объекта проектирования – объект бытового обслуживания населения.
Участок расположен по адресу: обл. Владимирская, г. Владимир, пр-т Строителей, дом 16в.
В основу объемно-пространственных и архитектурно-художественных решений, проектируемого объекта, заложена идея создания выраженного силуэта объекта при восприятии его с пр-та Строителей.
В условиях стесненной застройки здание будет визуально восприниматься с главного фасада – фронтально, со стороны проспекта Строителей. Большие площади остекления и применяемое стекло с высокой отражательной способностью позволяет еще лучше вписываться зданию в окружающую среду. На центральном фасаде предусмотрены глухие незастекленные стены, отведенные под наружную рекламу.
Каркас представляет собой рамно-связевую систему, состоящую из монолитных железобетонных пилонов , монолитных стен, лестничных клеток, являющимися ядрами жесткости и плоских плит перекрытий. Пространственная жесткость и устойчивость обеспечивается совместной работой жестких дисков перекрытий и вертикальных несущих конструкций. Основной шаг пилонов 6,0х6,0м. Здание выполняется в едином конструктивном объеме без разрезки деформационными швами
ТЭП:
1. Площадь застройки = 570,28 кв.м
2. Общая площадь = 2194,39 кв. м
3. Строительный объем =7761,54 кв.м.
Из них:
- выше отм. 0,000 = 6734,3 кв.м.
- ниже 0,000 = 1027,24 кв.м
4. Реконструируемая площадь = 558 кв.м (100%)