Стадия: предпроектное предложение, проект, рабочая документация
Участок расположен примерно в 5 м по направлению на север от ориентира жилое здание, расположенного за пределами участка, адрес ориентира: обл.Владимирская, г.Владимир, ул.Гражданская, дом 4а.
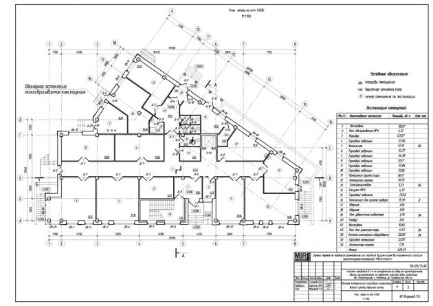
Площадь территории составляет 1693 м2 (+ 14 м2).
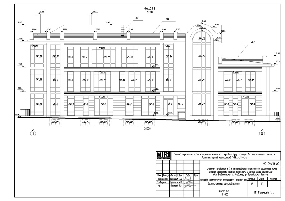
Архитектура здания лаконична, с использованием полиуретановых молдингов в виде поясов. Горизонтальные тяги в виде поясов визуально принижают дом, тем самым здание гармонично воспринимается с малоэтажной соседней застройкой. Кровля скатная. Арочный остекленный элемент является акцентом здания, его ось совпадает с осью дороги по ул.Дзержинского и хорошо читается со стороны ул. Студеная гора. Использование керамического кирпича для облицовки идеально вписывает его в окружающую градостроительную среду.
ТЭП:
1. Площадь застройки = 597,05 кв.м
2. Общая площадь = 1565,83 кв. м
3. Строительный объем =7081,82 куб.м.
Из них:
- выше отм. 0,000 = 5472,02 куб.м.
- ниже 0,000 = 1609,8 куб.м
4. Торговая площадь = 513,16 кв.м
5. Площадь офисных помещений = 163,26 кв.м.