Общественно-торговый центр с подземной автостоянкой
Адрес объекта: г. Владимир, ул. Батурина
Заказчик: ООО «Артель»
Годы проектирования: 2012 г.
- концепция
- проектная документация
- Общественно-торговый центр с подземной автостоянкой
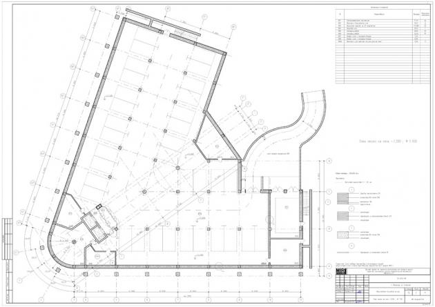
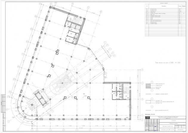
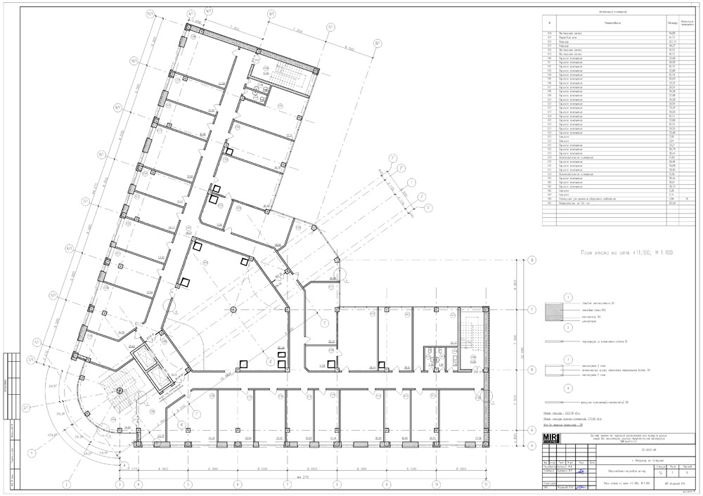
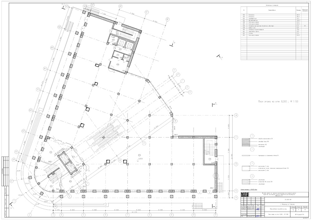
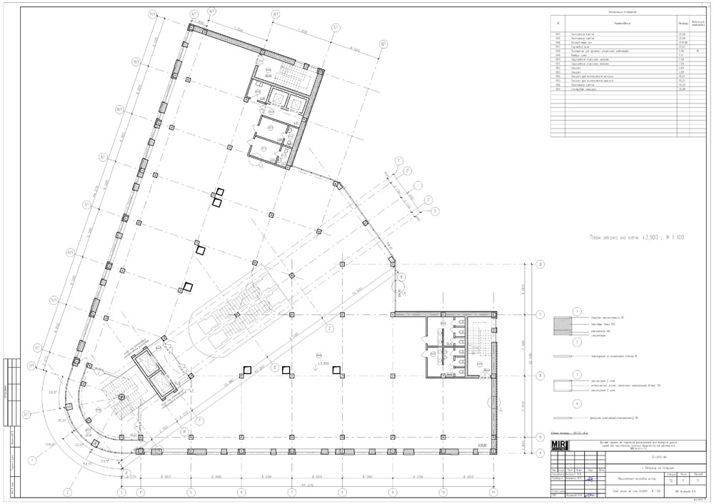
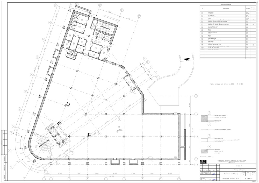
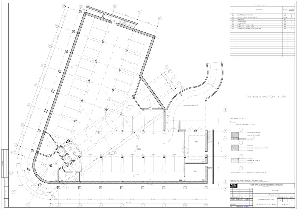
Проект общественно-торгового центра по ул. Батурина выполнен в соответствии с концепцией развития функционального узла на пересечении улиц Батурина и Михайловская. Проектом предусматривается возведение многофункционального комплекса с учетом основных градостроительных требований. Композиционное , архитектурное и объемно-планировочное решения выполнены с учетом сложившейся застройки таким образом , чтобы здание многофункционального комплекса не доминировало , а дополняло сложившуюся визуальную связь и подчеркивало основные здания данного ансамбля, который включает в себя здания более раннего периода постройки, а так же парадный вход в Парк 850 лет г. Владимира. Возведением данного здания решается организация пространства с выделением на первый план входа в парк, а так же организация благоустройства и прогулочной зоны в связи с парком. Композиционное решение здания, благодаря использованным архитектурным элементам, дополняет существующее здание банка , а так же создает портал и благоустроенную зону вдоль ул.Батурина.
Таким образом, развивается существующий градостроительный узел города, который во взаимосвязи с парком и близостью исторического ядра, дает возможность жителям и гостям города Владимира проводить здесь различные мероприятия, организовывать всевозможные встречи и конференции, выставки, проводить городские и народные праздники, гуляния. Также обеспечивает тихий и активный отдых населения для всех возрастных групп населения. Таким образом, общественно-торговый центр дает новую жизнь данной террито-рии и городскому парку.
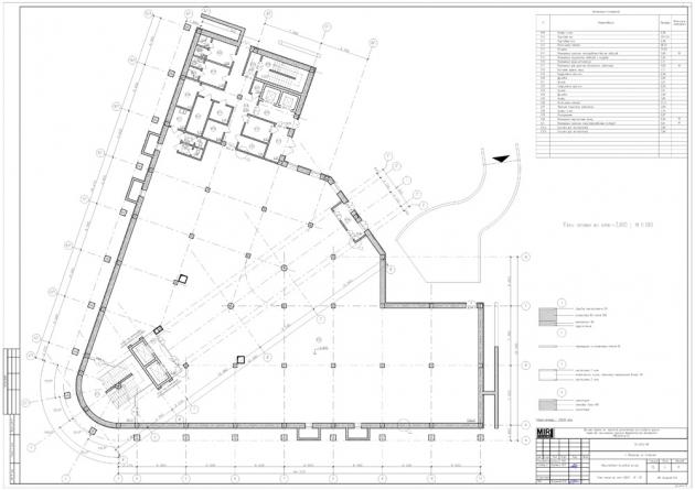
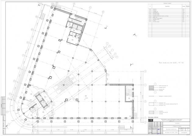
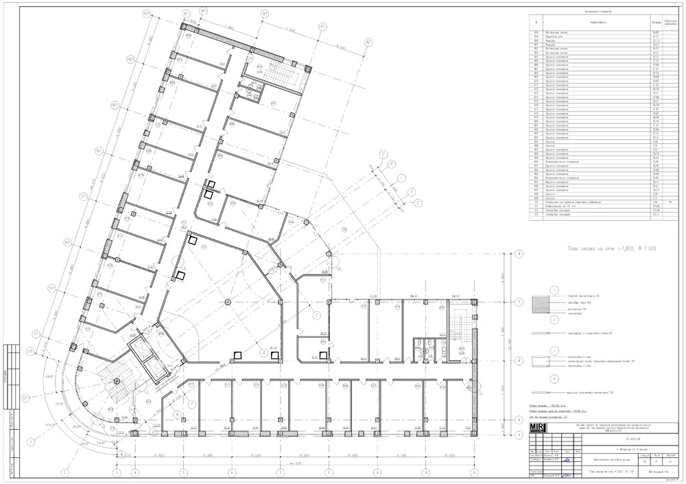
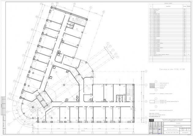
Функционально здание организовано таким образом, что на верхних этажах здания располагаются офисные и выставочные помещения, с видами на городской парк , историческое ядро и ул. Батурина.
















