Одноквартирный жилой дом усадебного типа г. Владимир, ул. Стрелецкая
Адрес объекта: г. Владимир, ул. Стрелецкая
Заказчик: физическое лицо
Годы проектирования: 2012
- проектная документация
- Одноквартирный жилой дом усадебного типа г. Владимир, ул. Стрелецкая
- реализация
Документы:
Постановление администрации города Владимира № 162 от 18.01.2013 об утверждении градостроительного плана земельного участка, расположенного по адресу: Владимирская область город Владимир, улица Стрелецкая, дом 25.
ГПЗУ №RU33301-002420, утвержденный постановлением администрацией города Владимира от 18.01.13 №162.
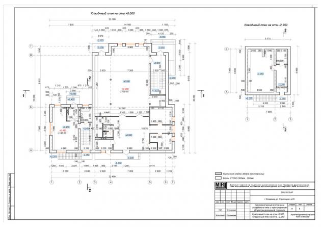
Проектируемый объект представляет собой одноквартирный жилой дом усадебного типа с пристроенным объектом розничной торговли.
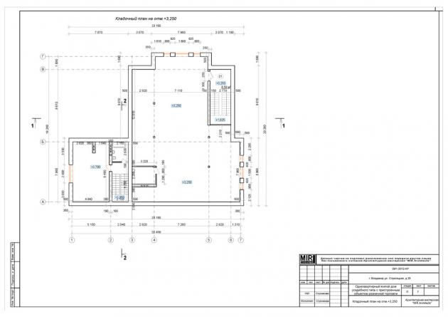
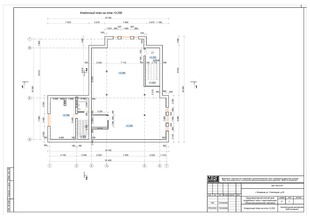
Жилой дом представляет собой одноэтажное здание с мансардой и подвалом и имеет в плане размеры 7,87х8,96 м. На первом этаже расположены тамбур, кухня-столовая-гостиная, санузел, лестничная клетка с лестницей на второй этаж. В подвал ведет лестница, расположенная снаружи здания с южной стороны. Там расположены подсобные помещения и холл. На мансардном этаже размещается просторная комната и санузел.
Магазин предназначен для розничной торговли смешанного ассортимента товаров. Магазин представляет собой одноэтажное здание с мансардой пристроенное к жилому дому. Магазин имеет два входа для посетителей. Для служебного персонала на южной стороне здания проектируется отдельный вход. С той же стороны осуществляется загрузка товаров. На первом этаже магазина следующий состав помещений: торговый зал, лестничная клетка, комната персонала, электрощитовая, санузел, водомерный узел, помещение для размещения газового оборудования, комната бухгалтерии. На мансардном этаже здания расположены подсобные помещения и инвентарная.
Участок расположен на пересечении двух улиц местного значения, ул.Стрелецкая и ул.Семашко. Территория участка граничит с севера с улицей Стрелецкая, с востока - улица Семашко с прилегающей застройкой усадебного типа, с запада - территория жилого дома усадебного типа, с юга участок, свободный от застройки.
Жилой дом проектируется в глубине участка. Главный вход в магазин ориентирован на ул. Стрелецкая. Загрузка осуществляется с южной стороны здания, с улицы Семашко.
Рельеф участка спокойный. Перепад отметок составляет 0,5 метров. Планировочное решение участка увязано с существующей прилегающей застройкой.
Гостевая автостоянка на 7 машино-мест располагается с северной стороны здания





