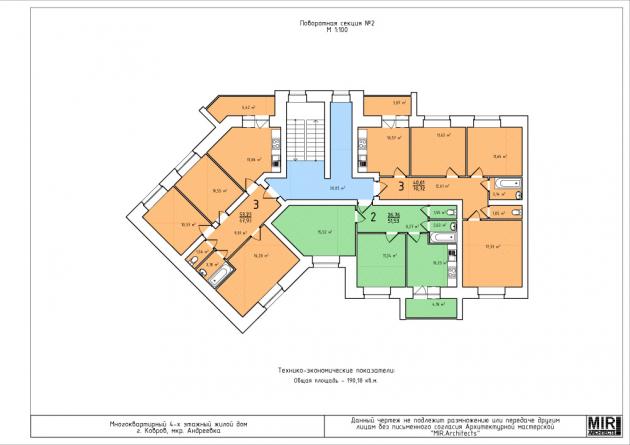
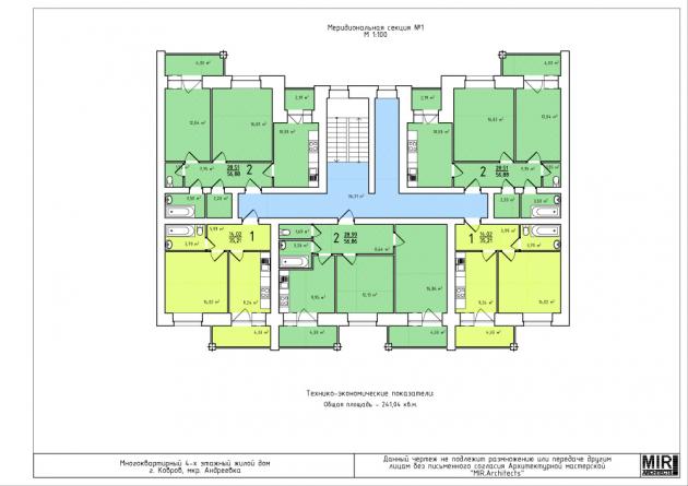
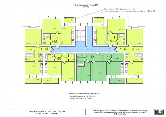
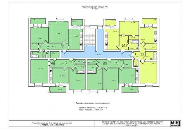
Предпроектное предложение четырех-пятиэтажных многоквартирных жилых домов (секций) г. Ковров
Адрес объекта: Владимирская обл., МО городской округ г. Ковров, г. Ковров, примерно в 50 метрах по направлению на запад от д. 7 по ул. Еловая (мкр. Андреевка)
Заказчик: ООО «СК КОНТИНЕНТ»
Годы проектирования: 2014



















