Стадия: проектная и рабочая документация
Проект выполнен на основании утвержденного проекта планировки и ГПЗУ .
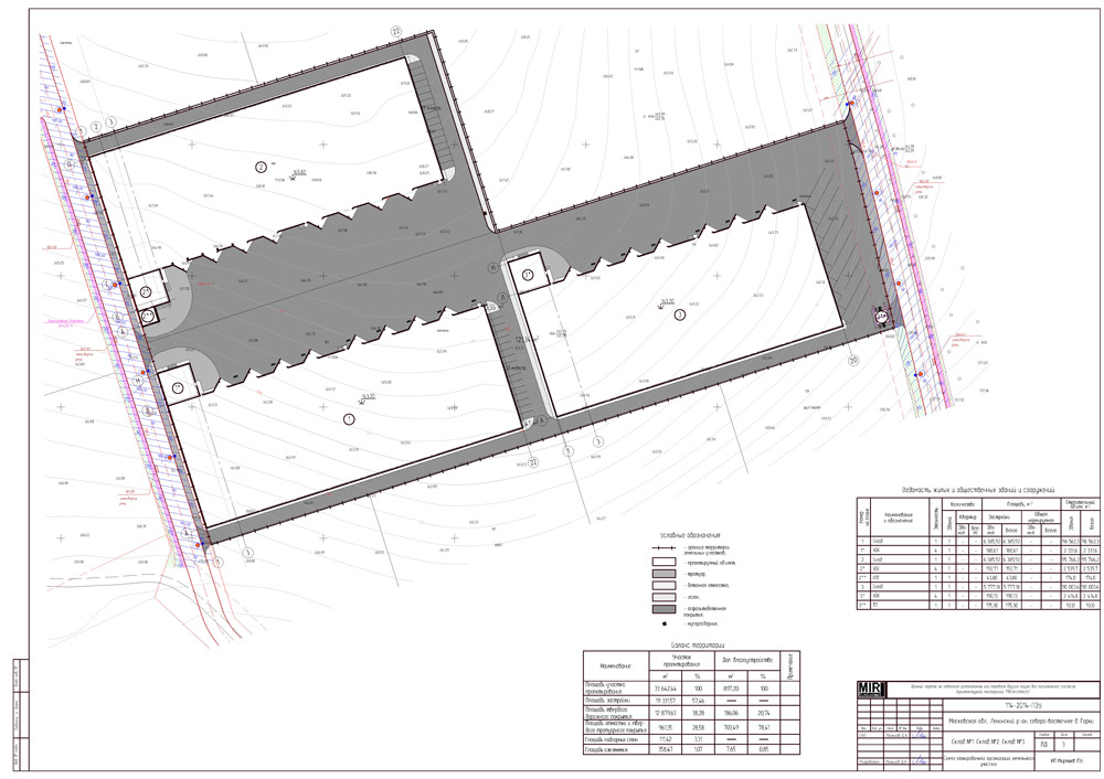
Склад с пристроенным административно-бытовым корпусом состоит из двух
объединённых объёмов: объём административно-бытового корпуса и объёма слада.
Административно-бытовой корпус четырёхэтажный.
Склад одноэтажный с антресольным пространством.
Кровля здания плоская. Доступ на кровлю осуществляется по пожарным
лестницам.
Фасады выполняются из сендвич-панелей серого цвета и оранжевого цвета.
Композиция фасадов здания по проекту достигается за счёт расколеровки.
Фасады выполняются из сендвич-панелей серого цвета (RAL 7047) и оранжевого
цвета (RAL 2011).
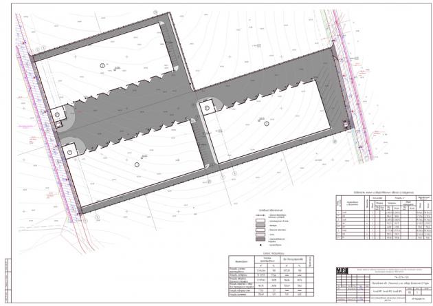
Технико - экономические показатели:
Площадь застройки - 6 478,54 м 2.
Объем строительный - 92 720 м 3.
Общая площадь здания - 8 308,76 м 2.
Административно-бытовой блок.
Общая площадь - 605,31 м 2.
Площадь офисов - 271,67 м 2.
Складская часть здания.
Площадь общая - 7 703,45 м 2.
Площадь склада - 6 100,85 м 2.
Площадь антресоли - 1 537,78 м 2.