Рынок продовольственных и не продовольственных товаров «Факел»
Проект: Рынок продовольственных и не продовольственных товаров розничной и мелкооптовой торговли. Стадия: предпроектное предложение, проектная и рабочая документация
Адрес объекта: Владимирская обл., г. Владимир, просп. Строителей
Заказчик: ООО «Поддержка»
Годы проектирования: 2013 г.
- проектная документация
- Рынок продовольственных и не продовольственных товаров «Факел»
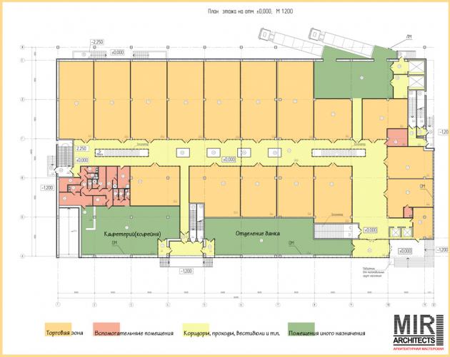
Рынок продовольственных и не продовольственных товаров розничной и мелкооптовой торговли - здание в составе которого три надземных, два подземных этажа, объем прямоугольной формы имеет размер в осях 84,0х45,0 м.
За отметку 0,000 принят уровень чистого пола первого этажа, что соответствует абсолютной отметке на местности 171,20. Уровень ответственности Il, степень огнестойкости – II. Класс по конструктивной пожарной опасности – СО, по функциональной пожарной опасности – Ф3.1.
Высота подземного этажа 3,600 м, высота подвального этажа 4,500 м., высота первого, второго и третьего этажа 4,500 м.
Подземный этаж на отметке – 8,100 м, является парковкой на 96 м/м.
Подвальный этаж на отметке -4,500 м. На этаже запроектирован торговый зал рынка продовольственных товаров с соответствующим набором помещений. Первый этаж, на отметке 0,000 м. Основная функция первого этажа рынок мелкооптовой и розничной торговли до 50-ти торговых точек, отделение банка и кафетерий (кофейня) рассчитанный на 36 посетителей. Второй этаж на отм. +4,500м. На этаже запроектированы торговые площади рынка непродовольственных товаров. Третий этаж на отм. +9,000м. На этаже размещается рынок непродовольственных товаров, зона фуд-корта.
Стеновое наружное ограждение - блоки газосиликатные, утепленные плитами минераловатными. В качестве основных материалов для отделки фасадов используется фактурная штукатурка «Сэнаржи» и деревянные конструкции, соответствующие нормативным требованиям к классу пожарной опасности строительных материалов. Фасады здания частично системы навесных вентилируемых фасадов «U-KON».
В качестве основного материала для строительства несущей части здания выбран железобетон.
Основные технико-экономические показатели:
Рынок
Площадь застройки – 4143,4 м2
Площадь торговых площадей – 8931,6 м2
Площадь «фудкорта» – 1444,8 м2
Площадь кафе-бара – 278,7 м2
Площадь кафетерия(кофейни) – 216,2 м2
Площадь банка – 236,2 м2
Площадь подземного паркинга – 3312,3 м2
Кол-во м/м – 96 в подземном паркинге + 35 на открытом. Итого: 131 м/м
Строительный объём - 89497,4 м3
в том числе, ниже отметки 0,000 – 33561,5 м3
Конструктивная схема – здание каркасное. Каркас представляет собой рамно-связевую систему, состоящую из монолитных железобетонных колонн, несущих стен лифтовых шахт и лестничных клеток, являющихся ядрами жесткости и монолитных плоских плит перекрытий. Основной шаг несущих колонн 8,4х9,0м.
Здание прямоугольное в плане делится температурным швом на два температурных блока.
Наружные стены подземной части запроектированы в виде монолитной железобетонной стены толщиной 300 мм с пилонами под колоннами, которые имеются выше отм. 0,000. Армированы стены двумя сетками из вязанной арматуры 12 А-500С с шагом 200х200мм. Вертикальная гидроизоляция наружных стен подземного этажа выполняется в виде обмазки холодной битумной мастикой за 2 раза. Утепляются пенополистирольными плитами “Пеноплэкс-35” (ТУ 5767-001-56925804-2003) толщиной 100мм.
Колонны – монолитные железобетонные сечением 500х500. Выполняются из бетона В25, F50. Армируются вязанными арматурными каркасами из 8 и 16 продольных стержней. Принципиальные конструктивные решения по колоннам даны на листах 8 – 15 настоящего комплекта.
Внутренние стены – монолитные железобетонные только в лифтовых шахтах и лестничных клетках толщиной 200мм. Стены выполняются из бетона В25,F75. Армированы двумя сетками из вязанной арматуры А- 500С с шагом 200х200 мм.
Перекрытия – монолитные железобетонные безбалочные плиты с капителями размером в плане 2,8х2,8м и толщиной 550 мм.










