Проект выполнен на основании утвержденного проекта планировки мкр.8-ЮЗ и ГПЗУ .
Участок расположен по адресу: обл. Владимирская, МО г. Владимир (городской округ), г.Владимир, 8ЮЗ, жилой комплекс «Орбита», земельный участок примерно в 63 м. по направлению на юг от ориентира жилой дом, расположенного за пределами участка, адрес ориентира: обл. Владимирская, г. Владимир, ул. 3-я Кольцевая, д. 25-а
Площадь территории составляет 3,8036 га.
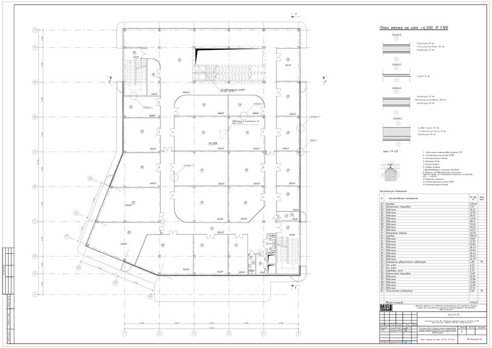
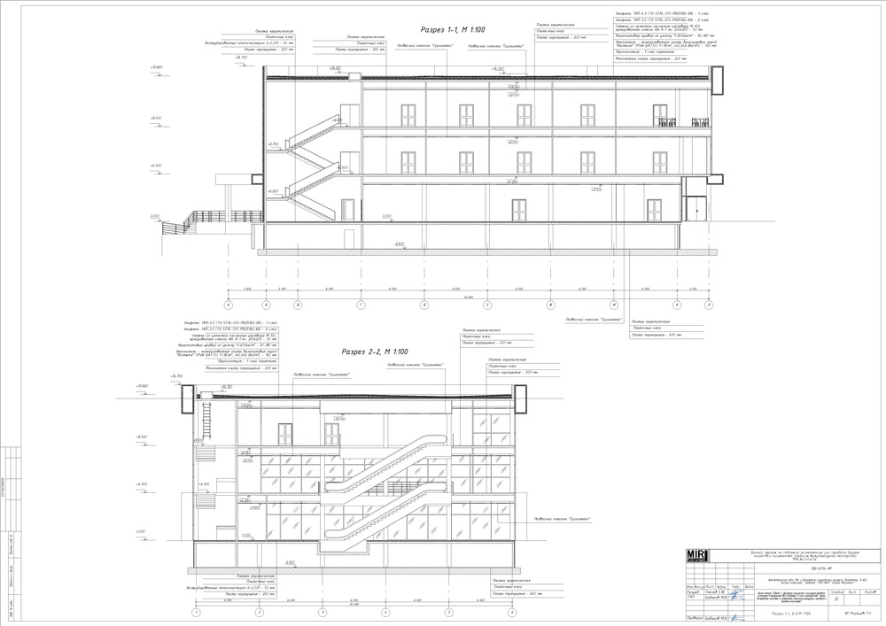
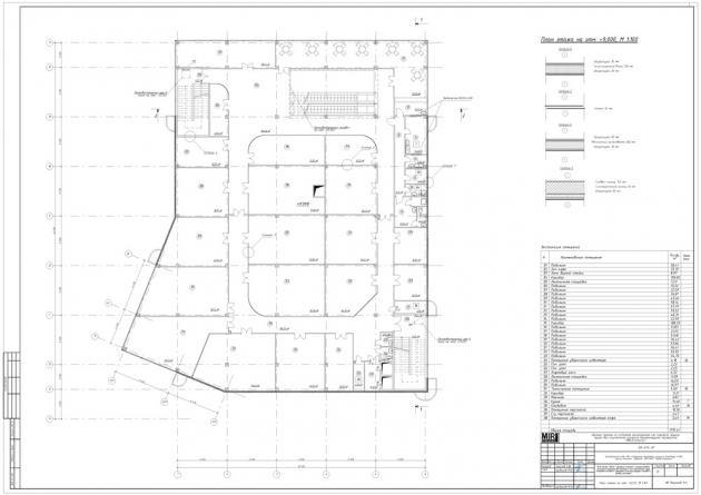
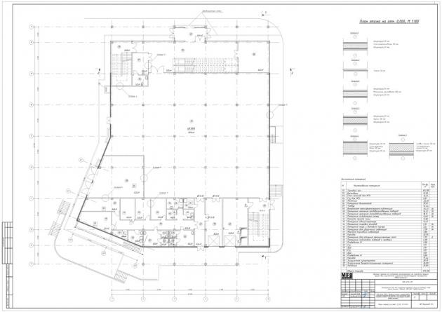
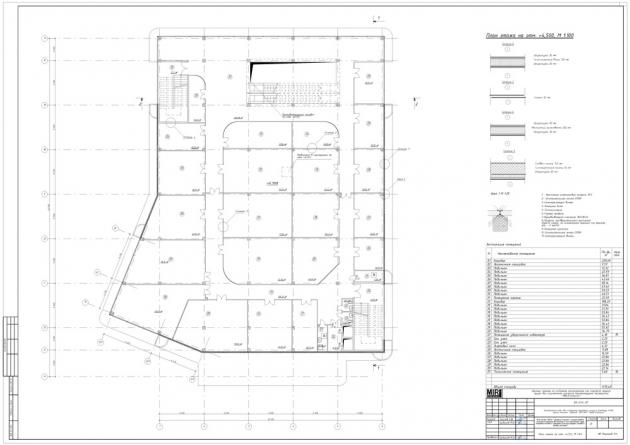
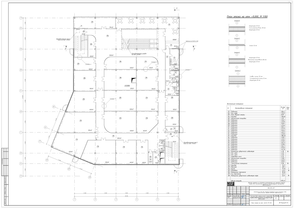
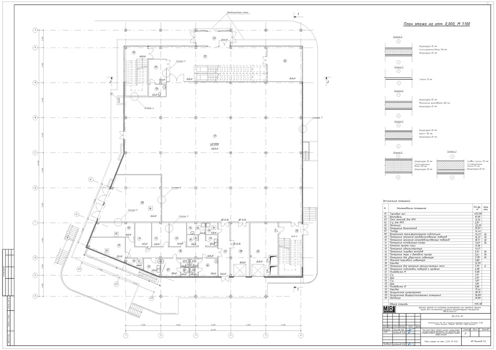
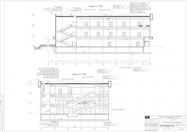
Проектируемый центр обслуживания населения (с помещениями социально-культурного, торгового и бытового назначения) представляет собой 4 этажное здание. Каркас здания предусматривается в монолитном железобетонном исполнении с заполнением ограждающих конструкций сэндвич панелями, стеклом, конструкциями из вентилируемых фасадных систем.
Существующая застройка вокруг проектируемого центра обслуживания населения, сформирована двумя 3 этажными подземными парковками, четырьмя 17-этажными жилыми домами.
Наружная отделка:
Цоколь – керамическая или керамогранитная плитка.
Стены – системы навесных вентилируемых фасадов из композитных материалов, «сендвич» панели
Остекление – структурная система остекления
Кровля – плоская многослойная.
Технико - экономические показатели:
Общая площадь здания – 4 725,39 кв.м.
Площадь застройки – 1 363,71 кв.м.
Строительный объем:
- надземной части – 19 828,37 куб.м.
- подземной части – 3 127,55 куб.м.
Площадь торгового зала – 652,90 кв.м.
Площадь помещений общественного обслуживания – 1 478,94 кв.м.
Высота этажа: отм. -2,650; – 2,35м. Отм. 0,000; +4,500; +9,000 – 4,2м.