Портфолио
О компании
События
Партнеры
Контакты
Обратный звонок
по направлению
Градостроительство
Жилые здания
Общественные здания
Промышленные здания
Благоустройство
по статусу
Концепция
Проекты планировок
Проектная документация
Реализация
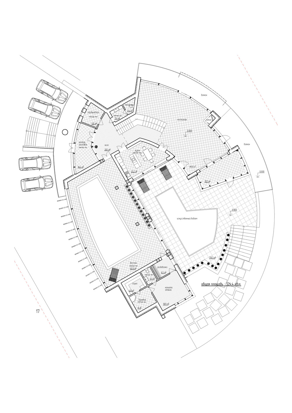
Жилой дом усадебного типа д. Лунёво
проектная документация
Жилой дом усадебного типа д. Лунёво
Обратный звонок
Как Вас зовут?
*
Контактный телефон:
*
Сообщение отправлено.
Спасибо за обращение!
Закрыть