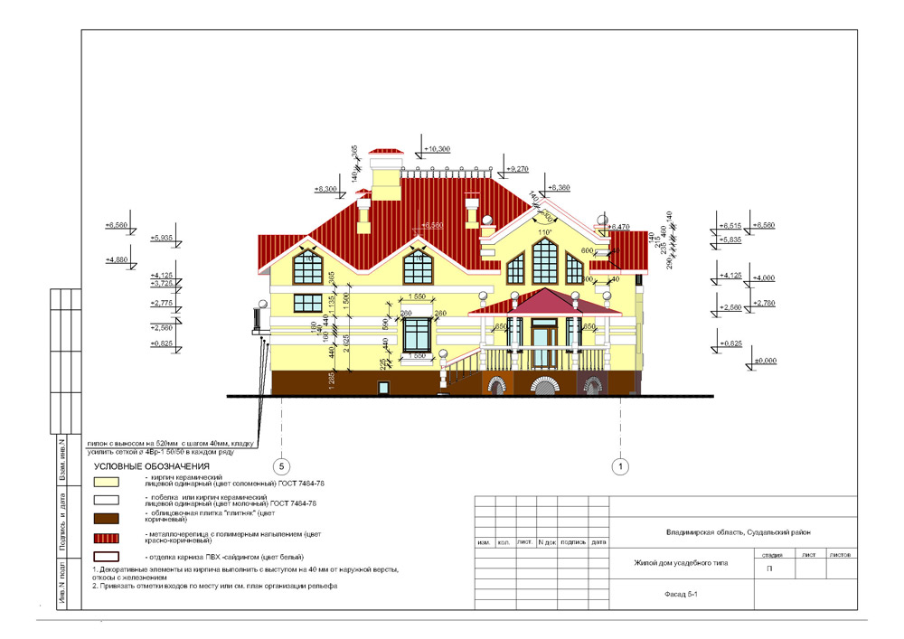
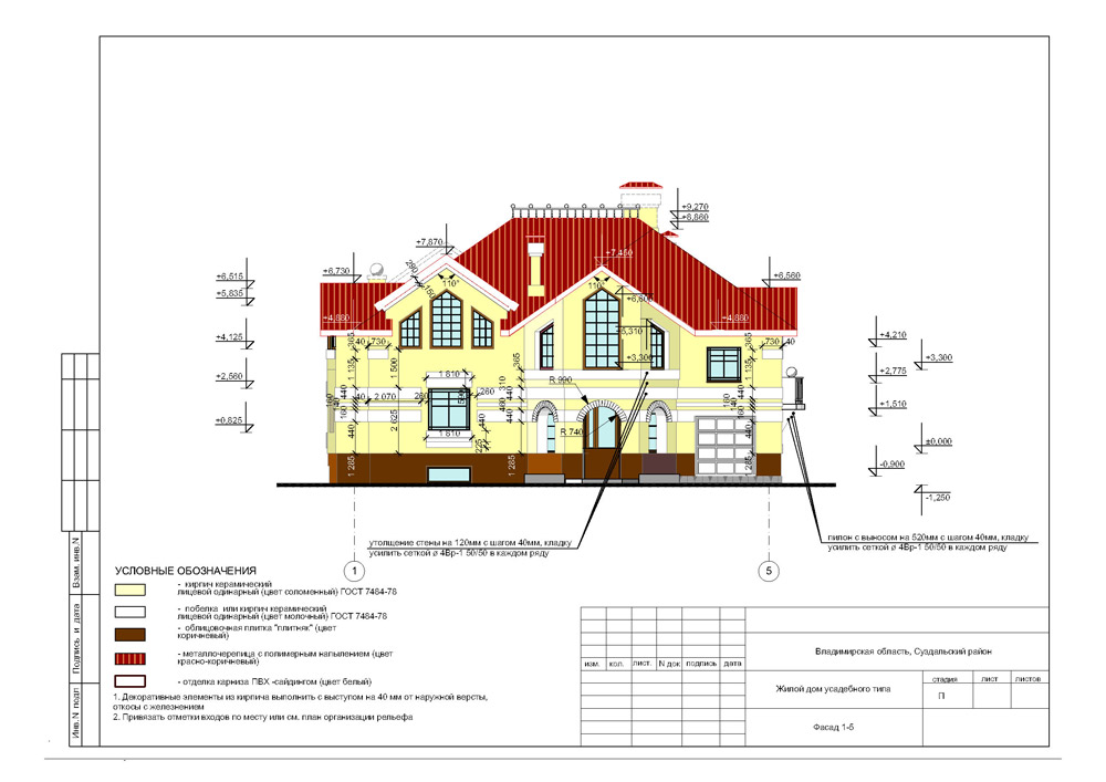
Жилой дом усадебного типа д. Раменье
Адрес объекта: Владимирская обл., Суздальский район, д. Раменье
Заказчик: физическое лицо
Годы проектирования: 2011 г.
Адрес объекта: Владимирская обл., Суздальский район, д. Раменье
Заказчик: физическое лицо
Годы проектирования: 2011 г.
Сообщение отправлено.
Спасибо за обращение!