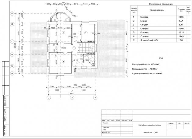
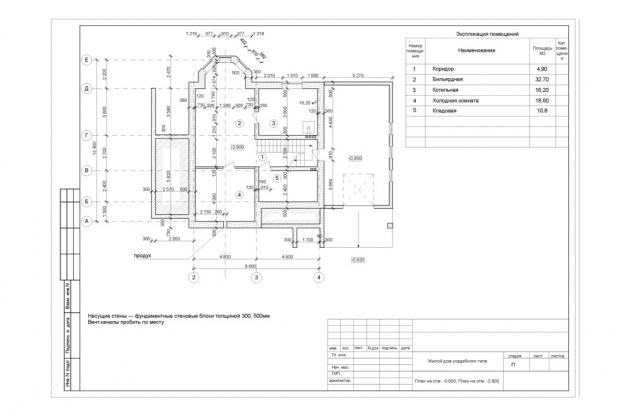
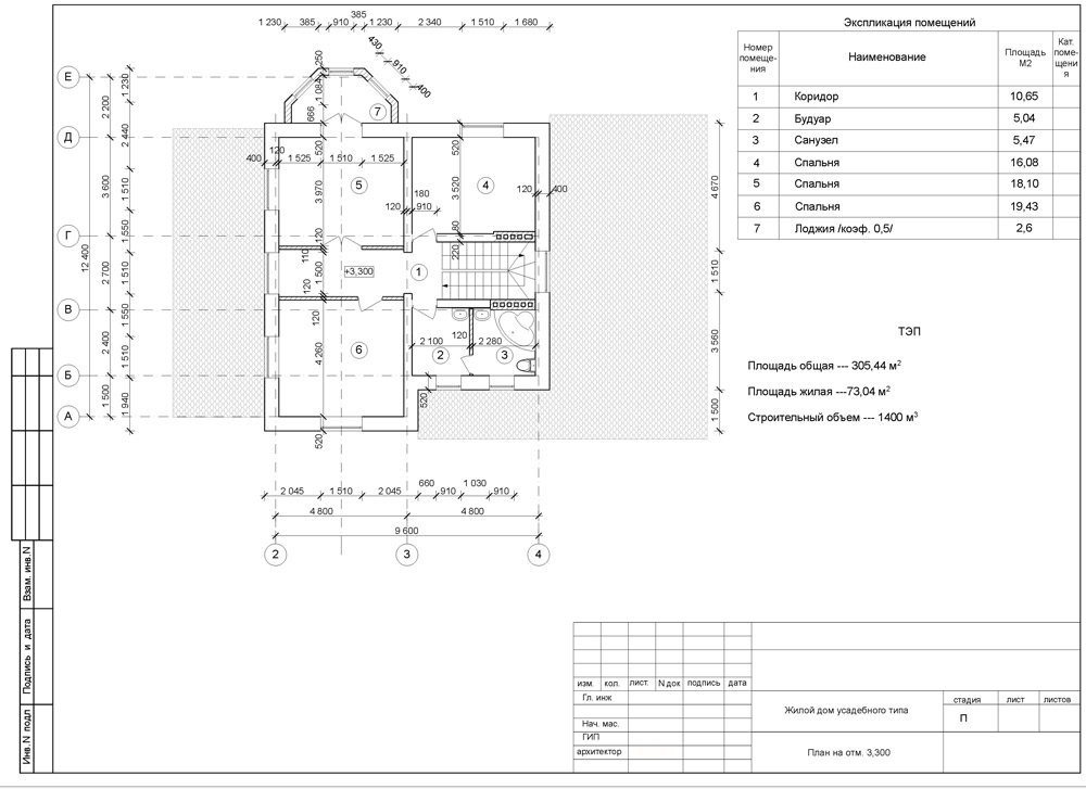
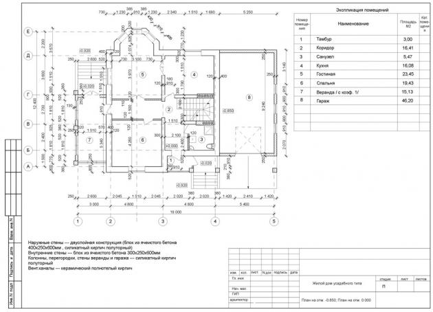
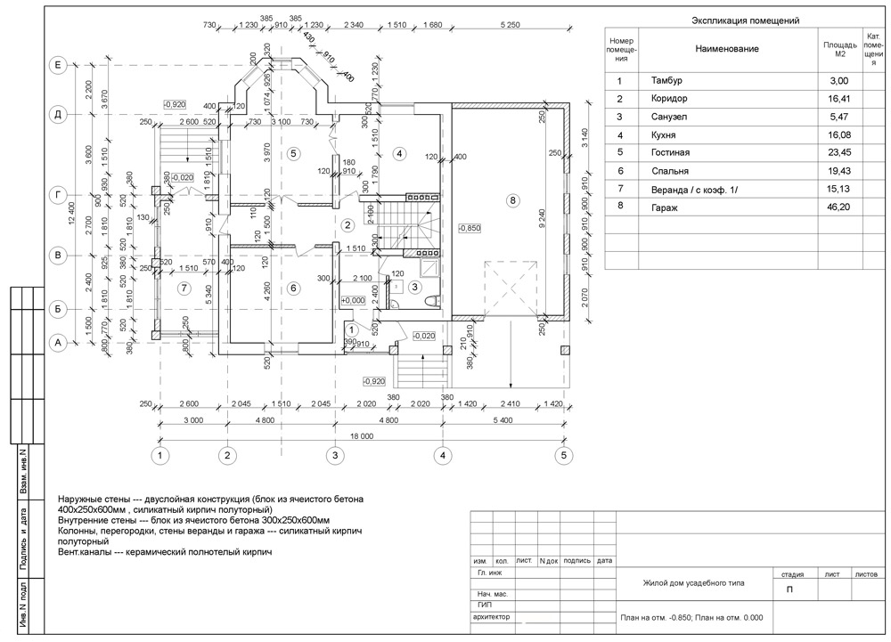
Жилой дом усадебного типа с. Сновицы
Адрес объекта: г. Владимир, с. Сновицы
Заказчик: физическое лицо
Годы проектирования: 2011 г.
Адрес объекта: г. Владимир, с. Сновицы
Заказчик: физическое лицо
Годы проектирования: 2011 г.
Сообщение отправлено.
Спасибо за обращение!