Жилой дом усадебного типа ул. Вознесенская
Адрес объекта: г. Владимир, ул. Вознесенская
Заказчик: физическое лицо
Годы проектирования: 2014 г.
- проектная документация
- Жилой дом усадебного типа ул. Вознесенская
Жилой дом усадебного типа проектируется на ул. Вознесенская в историческом ядре г.Владимира
Предпроектное предложение жилого дома усадебного типасогласовано с обл.государственной инспекции по охране объектов культурного наследия.
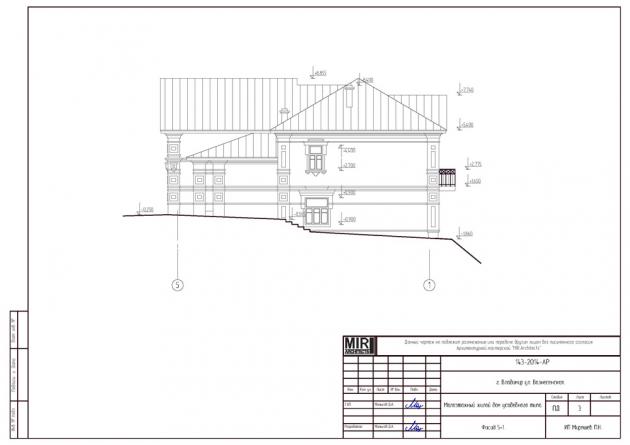
Здание имеет габаритные размеры в плане по осям 1-3 и Б-Г - 9,65 х 10,80 метра, по осям 3-5 и А-В - 9,65 х 7,55 метра, по осям 3-4 и В-Г - 4,13 х 4,53 метра.
Количество этажей 3 этажа. Из них два надземных, один подземный. Часть в осях 3-5 и А-В представляет собой двухэтажный фрагмент здания, выходящий в сторону ул. Вознесенской и закрепляющий исторически сложившуюся линию застройки по улице. В ней располагается гараж на два машино-места и тренажерный зал. Часть в осях 3-4 и В-Г представляет собой одноэтажный фрагмент здания, который представлен планировочно как входная группа.Часть в осях 1-3 и Б-Г представляет собой трёхэтажный фрагмент здания (включая подземный этаж). Два надземных этажа жилое пространство. В подземном этаже находятся технические и хозяйственные помещения.Связь этажей осуществляется по лестнице. Крыша здания скатная. Уклон основного объема крыши здания составляет 35о. Уклон крыши входной группы составляет 20о. Высота здания в осях 3-5 и А-В от уровня дневной поверхности земли до конька составляет 9,04 метра.
В основу принятых объемно-пространственных решений и архитектурно-художественных решений заложены следующие принципы и задачи:- характер исторически сложившейся архитектурно-градостроительной среды;- рациональное использование территории участка и застройки;- создание единого архитектурного комплекса;- пропорциональные соотношения с окружающей застройкой;- внедрение новых технических решений, способствующих снижению массы здания, уменьшению стоимости и сокращению сроков строительства.Здание по проекту выполнено в псевдо-русском стиле.Объемно-планировочное решение проектируемого здания обусловлено функциональными, технологическими и санитарно-гигиеническими требованиями, сложившейся ситуации по генплану.Объемно-планировочное решение выполнено в соответствии с параметрами разрешенного строительства, габаритами существующих зданий, с соблюдением требований пожарной безопасности.
Композиционное решение фасадов представлено членением плоскостей фасадов с помощью пилястр, поясков, а также обрамлениями окон (наличниками). Покрытие кровли выполняется из листового кровельного железа с покраской. Цвет RAL-8028.Наружная верста кладки стен здания выполняется из исторического керамического кирпича ручной формовки. Тип "Новгородский" размерами 250х120х65 из коллекции "Старая Русь". Производитель - "Тюменский завод исторического кирпича".
Отделка помещений разрабатывается отдельно в дизайн проекте интерьеров. Двери наружные деревянные. Блоки оконные из поливинилхлоридных профилей, согласно ГОСТ 30674-99 с ламинированным покрытием по фактуру дуба.









