Автостоянка Ставровская д. 1
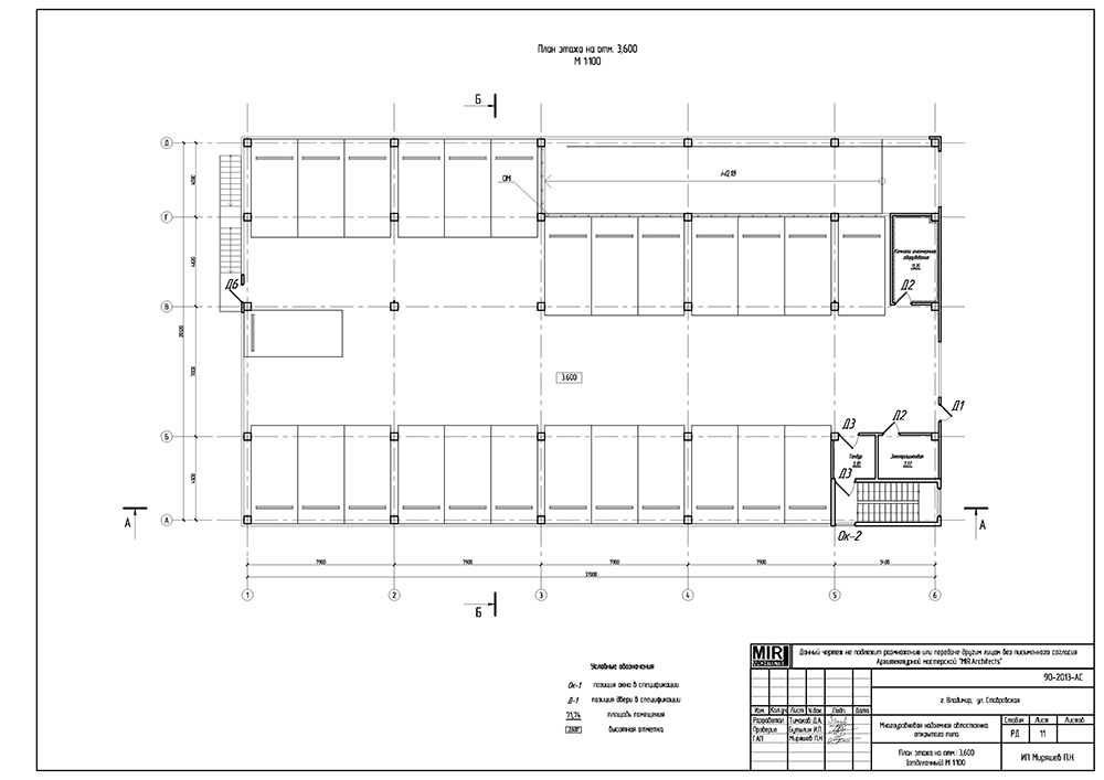
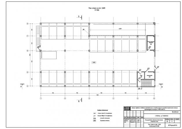
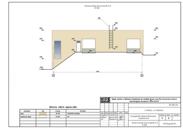
Проект: Многоуровневая надземная автостоянка открытого типа по адресу: г. Владимир, ул. Ставровская, дом №1
Заказчик: ООО «Монолит-Домострой»
Годы проектирования: 2013
Проект: Многоуровневая надземная автостоянка открытого типа по адресу: г. Владимир, ул. Ставровская, дом №1
Заказчик: ООО «Монолит-Домострой»
Годы проектирования: 2013
Сообщение отправлено.
Спасибо за обращение!