Жилой дом проектируется на основании утвержденного проекта планировки территории, ограниченной автомагистралью М-7 «Волга», границами земельных участков ГСК «Лакинск-2», ГСК «Ставровский», ул.Ставровской, проспектом Ленина и перспективным створом продолжения ул.Верхняя Дуброва»
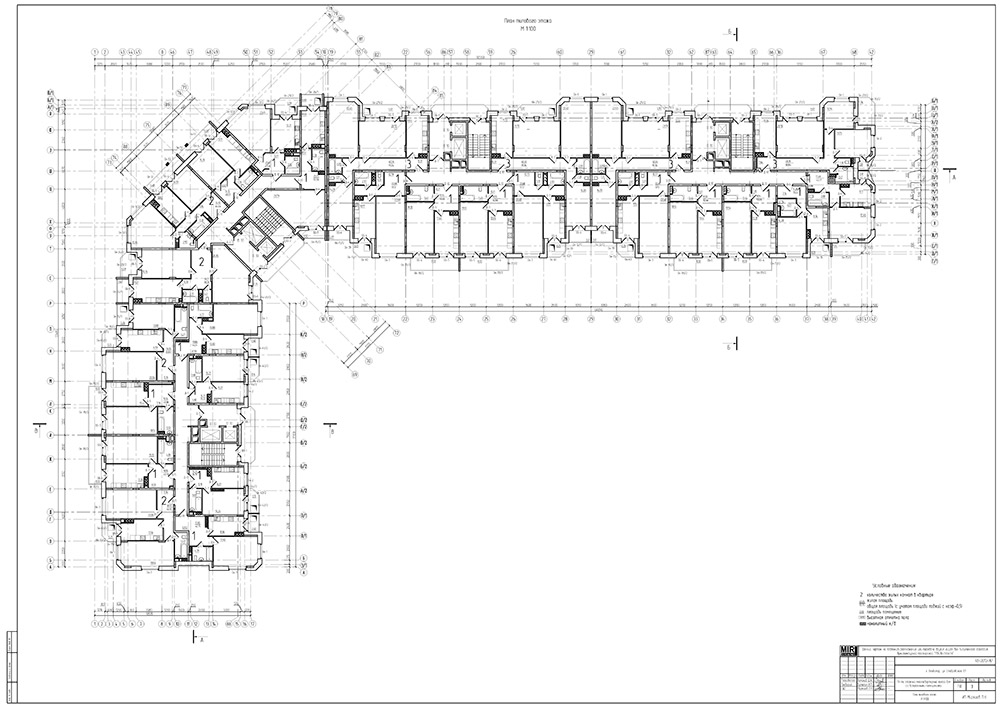
Дом имеет 17 жилых этажей, в поворотной секции квартиры, на последнем этаже, двухуровневые. В основу объемно-пространственных и архитектурно-художественных решений, проектируемого объекта, заложена идея создания выраженного силуэта города при въезде с трассы М-7 со стороны микрорайона Юрьевец.
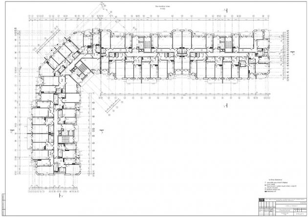
В плане дом представляет собой «Г» - образную форму.
Архитектура здания лаконична, без использования украшений и сложных элементов в оформлении домов. Горизонтальные тяги в виде поясов визуально принижают дом, что облегчает его восприятие с более низкой соседней застройкой. Кровля плоская. Выступающие над кровлей лестничные клетки представляют собой акценты на фасадах. Архитектурный акцент на поворотной секции хорошо читается со стороны въезда в город, за счет увеличения высотности и декоративного элемента, подчеркивающий вертикальныйакцент.
ТЭП:
1 ком. – 291 кв. – 67,7 %
2 ком. – 66 кв. - 15,3%
3 ком. – 71 кв. – 16,5 %
5 ком. – 2 кв. – 0,5 %
Площадь застройки – 2 577,39 м2
Общая площадь – 34 302 м2
Общая площадь квартир – 24 921 м2
Площадь встроенных помещений общественного назначения (продовольственный магазин, в соответствии с ранее разработанным проектом планировки) – 244,34 м2
Площадь встроенных помещений детского сада – 432,18 м2
Строительный объем ниже отм. 0,000 – 6 154,4 м3
Строительный объем выше 0,000 – 11 8935,2 м3