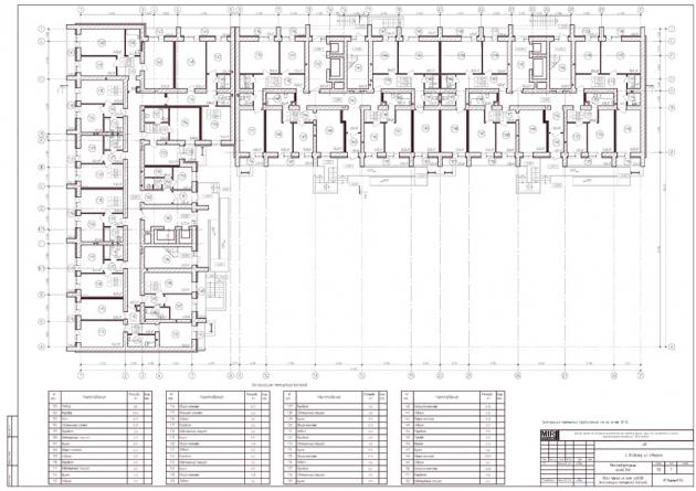
Многоквартирный жилой дом №1, ул. Северная
Проект: Проект реализации жилого дома №1 по ул. Северная
Заказчик: ООО УК «СТРОЙКОМ»
Годы проектирования: 2013
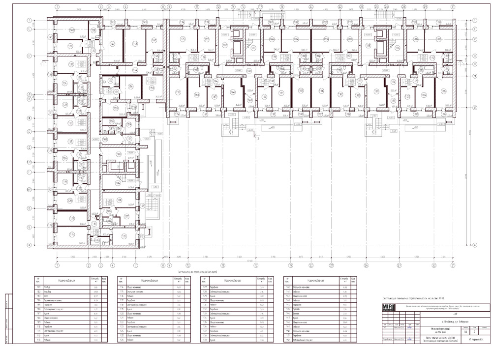
Проект: Проект реализации жилого дома №1 по ул. Северная
Заказчик: ООО УК «СТРОЙКОМ»
Годы проектирования: 2013
Сообщение отправлено.
Спасибо за обращение!