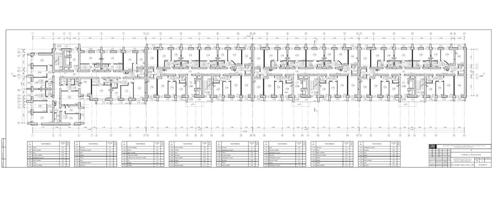
Многоквартирный жилой дом №6, ул. П. Осипенко
Проект: Проект рекализации жилого дома №6 по ул. П. Осипенко
Заказчик: ООО УК «СТРОЙКОМ»
Годы проектирования: 2013
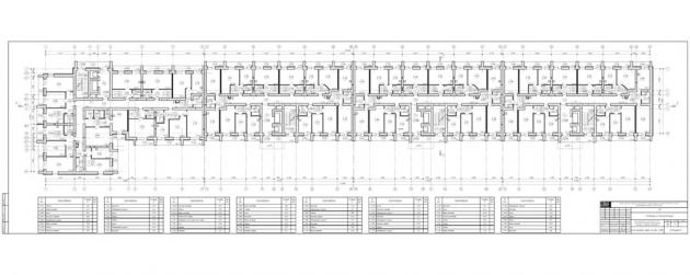
Проект: Проект рекализации жилого дома №6 по ул. П. Осипенко
Заказчик: ООО УК «СТРОЙКОМ»
Годы проектирования: 2013
Сообщение отправлено.
Спасибо за обращение!