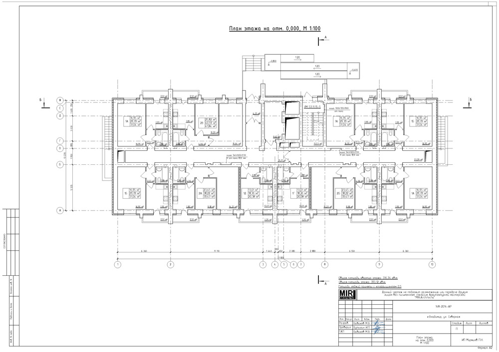
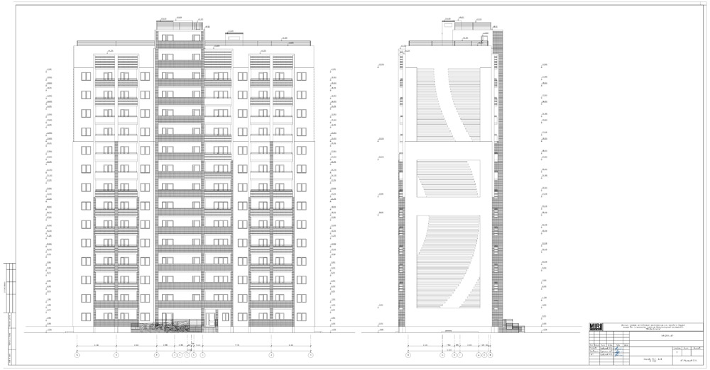
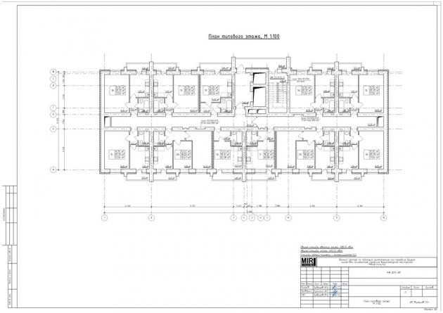
Многоквартирный жилой дом №7, ул. Северная
Проект: Проект рекализации жилого дома №1 по ул. Северная
Заказчик: ООО УК «СТРОЙКОМ»
Годы проектирования: 2013
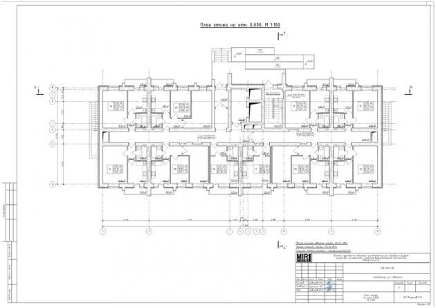
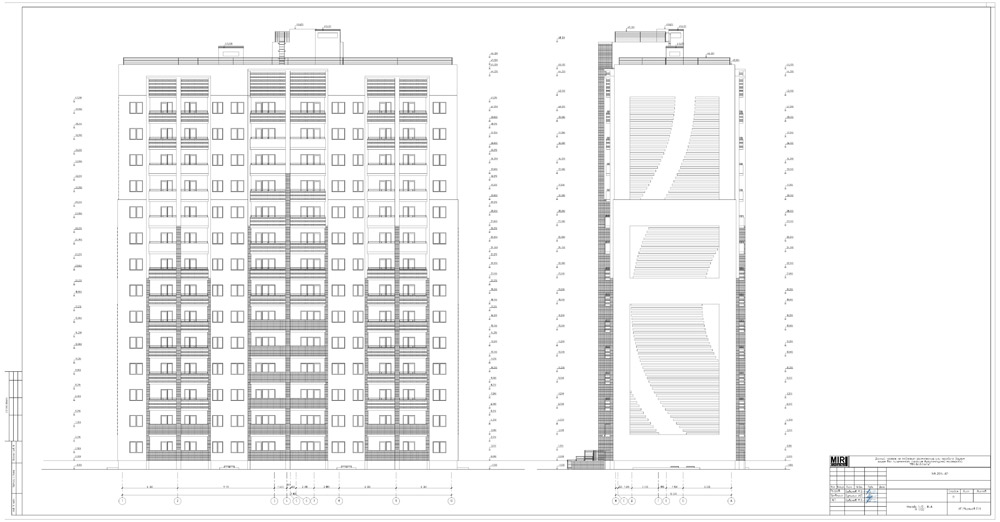
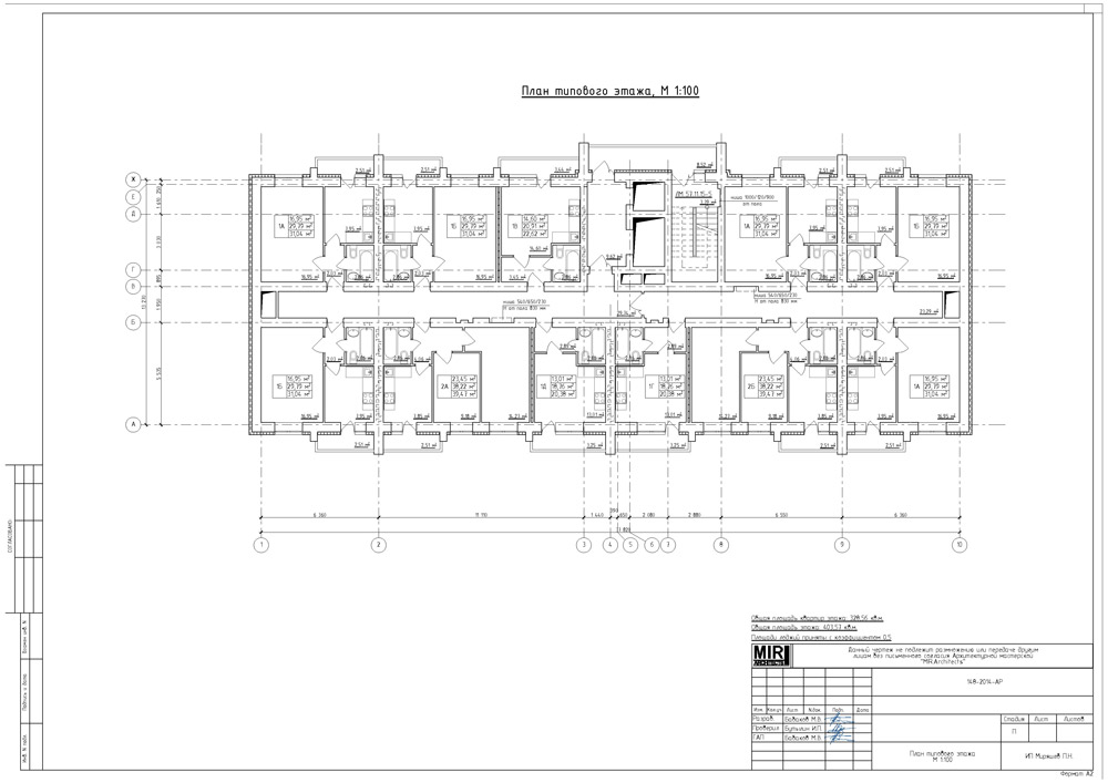
Проект: Проект рекализации жилого дома №1 по ул. Северная
Заказчик: ООО УК «СТРОЙКОМ»
Годы проектирования: 2013
Сообщение отправлено.
Спасибо за обращение!