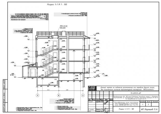
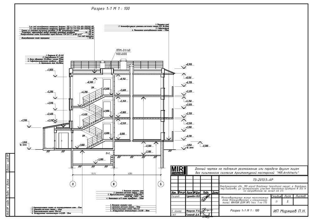
Мкр. Пиганово жилой дом № 12
Проект: Жилые дома 2 очередь строительства
Заказчик: ООО «Инвестиционно-строительная компания «Строй-капитал» - дочерняя компания ООО «Игротэк»
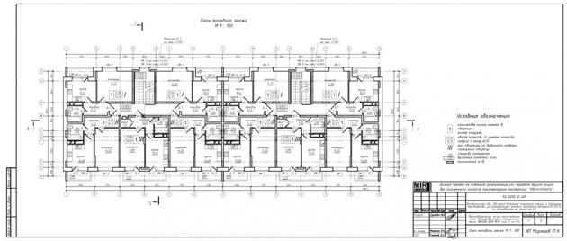
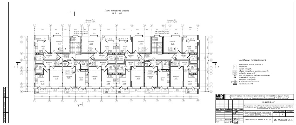
Проект: Жилые дома 2 очередь строительства
Заказчик: ООО «Инвестиционно-строительная компания «Строй-капитал» - дочерняя компания ООО «Игротэк»
Сообщение отправлено.
Спасибо за обращение!