Мкр. Пиганово жилой дом №1
Проект: Жилые дома 1 очередь строительства
Заказчик: ООО «Инвестиционно-строительная компания «Строй-капитал» - дочерняя компания ООО «Игротэк»
- концепция
- проект планировки
- проектная документация
- реализация
Проект выполнен в соответствии с основными требованиями комфортности проживания и качества градостроительных решений в увязке с существующей застройкой и окружающей средой.
Строительство 1 очереди – 2014 -2015гг.
Данные о районе и участке проектирования.
Первая очередь строительства в мкр.Пиганово г.Владимир состоит из группы 4 малоэтажных жилых домов.
Участок строительства располагается мкр. Пиганово, 355км на запад от города Владимира.
Площадь условного участка проектирования составляет 2 739,02 м2.
Современное использование территории.
Местность проектируемого участка в настоящий момент свободна от застройки и представляет собой пустырь, хаотично-заросший деревьями и кустарником. Рельеф участка имеет перепад отметок 5,38 метра по направлению уклона на восток. Место не заболочено. Абсолютные отметки варьируются от 162,74 до 157,36. Сток поверхностных вод свободный.
Основные технико - экономические показатели:
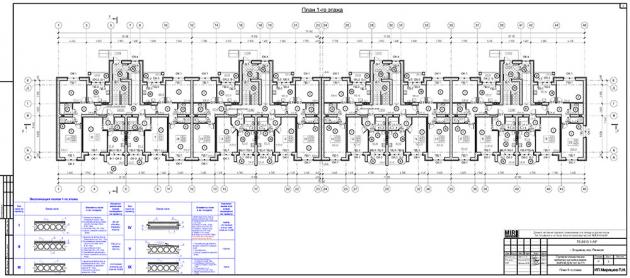
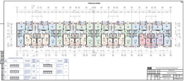
Количество этажей – 3
Количество квартир – 47
Количество 1-комн. Квартир - 23
Количество 2-комн. Квартир - 22
Количество 3-комн. Квартир – 2
Площадь застройки - 1147,7 м2
Общая площадь здания - 1962,1 м2
Жилая площадь - 1093,6 м2
Площадь квартир (отапливаемая) - 1962,1 м2
Общая площадь квартир ( с коэффициентом 0,5 для лоджий) - 2057,15 м2
Площадь неотапливаемых помещений квартир (лоджии, балконы) - 190,1 м2
Площадь техподполья - 665,4м2
Строительный объем - 10861 м3
в т.ч. ниже ±0,000 - 1825 м3
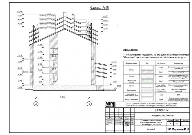
Архитектурные решения фасадов.
Выбор цветового решения – желтый и красно-коричневые цвета.
В основу объемно-пространственных и архитектурно-художественных решений проектируемого объекта заложена идея создания удобного и функционального жилья, рационального использования территории участка, соблюдение технологических, санитарно-гигиенических и противопожарных требований.
Проектируемый жилой дом является первой очередью строительства, окружающей застройки не существует. Поэтому было решено создать образное решение, способное задать тон дальнейшей застройке. Основной акцент сделан на современные и экологичные материалы. Рельеф участка имеет крутой уклон, вследствие чего секции располагаются каскадом. Чтобы подчеркнуть образовавшуюся естественную динамику, на фасаде используются горизонтальные и вертикальные членения. Цвета подобраны в сближенной гамме, чередуются темные и светлые тона. Дом целостен и традиционен в градостроительном смысле, доступен для обхода и восприятия с близких расстояний. Архитектура проста и лаконична, без использования украшений и сложных элементов в оформлении домов.







