Мкр. Пиганово жилой дом №5
Проект: Жилые дома 2 очередь строительства
Заказчик: ООО «Инвестиционно-строительная компания «Строй-капитал» - дочерняя компания ООО «Игротэк»
- концепция
- проект планировки
- проектная документация
- реализация
Проект «Группа многоквартирных малоэтажных жилых домов. Жилой дом №5 (№1 по ГП)» выполнен в соответствии с основными требованиями комфортности проживания и качества градостроительных решений в увязке с существующей застройкой и окружающей средой.
Строительство 2 очереди – 2015 -2016гг.
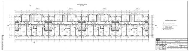
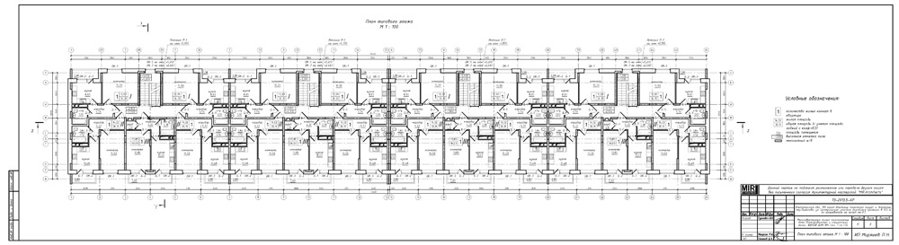
Жилой дом №5
Этажность – 3 этажа
Количество квартир – 60 кв. (все квартиры однокомнатные)
Площадь застройки – 1124,96 м2
Площадь жилого здания – 2518,28 м2
Общая площадь квартир – 2111,48 м2
Строительный объём – 15896,25 м3
Остов монолит, наружные стены газосиликатное заполнение
Архитектурные решения фасадов.
В качестве основного материала для отделки здания проектом предложен штукатурный фасад. Художественный облик здания создается за счет пластики фасадов, выступающих лоджий и цветового решения.
В основу объемно-пространственных и архитектурно-художественных решений проектируемого объекта заложена идея создания удобного и функционального жилья, рационального использования территории участка, соблюдение технологических, санитарно-гигиенических и противопожарных требований.
Рельеф участка имеет крутой уклон, вследствие чего секции располагаются каскадом. Чтобы подчеркнуть образовавшуюся естественную динамику, на фасаде используются горизонтальные и вертикальные членения. Цвета подобраны в сближенной гамме, чередуются темные и светлые тона. Дом целостен и традиционен в градостроительном смысле, доступен для обхода и восприятия с близких расстояний. Архитектура проста и лаконична, без использования украшений и сложных элементов в оформлении домов. Кровля плоская.






