Мкр. Пиганово жилой дом № 6, 8, 10
Проект: Жилые дома 2 очередь строительства
Заказчик: ООО «Инвестиционно-строительная компания «Строй-капитал» - дочерняя компания ООО «Игротэк»
- концепция
- проект планировки
- проектная документация
- реализация
Строительство 2 очереди – 2015-2016 гг.
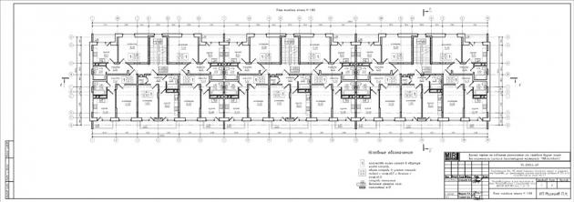
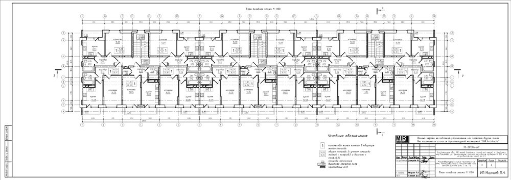
Проект «Многоквартирные жилые малоэтажные дома (блокированного и секционного типа). Жилой дом №6 (поз. 1 по ГП)» выполнен в соответствии с основными требованиями комфортности проживания и качества градостроительных решений в увязке с существующей застройкой и окружающей средой.
Основные технико - экономические показатели:
Жилой дом №6, 8, 10
Этажность – 3 этажа
Количество квартир – 45 кв. (все квартиры однокомнатные)
Площадь застройки – 843,72 м2
Площадь жилого здания – 2098,34 м2
Общая площадь квартир – 1573,80 м2
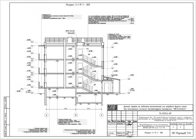
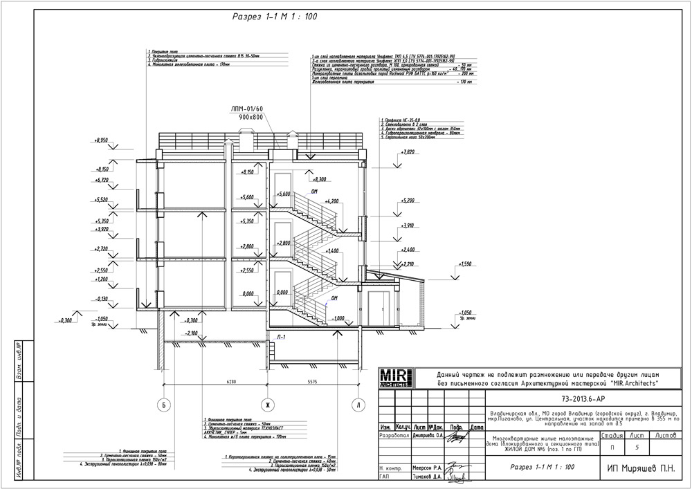
Остов монолит, наружные стены газосиликатное заполнение
Архитектурные решения фасадов.
В качестве основного материала для отделки здания проектом предложен штукатурный фасад. Художественный облик здания создается за счет пластики фасадов, выступающих лоджий и цветового решения.
Окружающей застройки не существует. Поэтому было решено создать образное решение, способное задать тон дальнейшей застройке. Основной акцент сделан на современные и экологичные материалы. Рельеф участка имеет небольшой перепад, вследствие чего секции располагаются в одном уровне. Чтобы подчеркнуть образовавшуюся естественную динамику, на фасаде используются горизонтальные и вертикальные членения. Цвета подобраны в сближенной гамме, чередуются темные и светлые тона. Дом целостен и традиционен в градостроительном смысле, доступен для обхода и восприятия с близких расстояний. Архитектура проста и лаконична, без использования украшений и сложных элементов в оформлении домов. Кровля плоская. В едином стиле квартала






